
Ландшафтные дизайнеры
4.94
·
10 отзывов
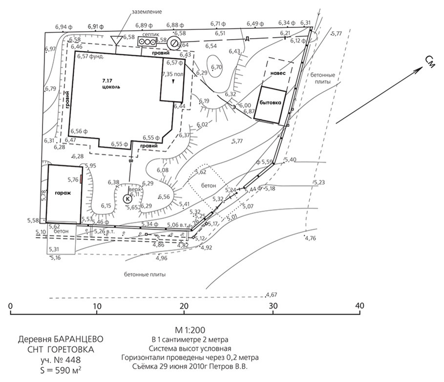
Проект ландшафтного дизайна участка 6 соток уклоном у деревни Горетовка.
Проект ландшафтного дизайна участка 6 соток имеет сложный и сильный уклон. Глядя на проект участка можно понять, насколько сложный рельеф надо было приспособить к нормальной и качественной жизни и отдыху. . . Автор проекта: Алена Арсеньева.
Другие фотографии в проекте
Вопросы к фото 0
Задайте вопрос
Вам ответят эксперты. Пришлем уведомление, когда вам ответят


