
Дизайнеры интерьера
5
·
10 отзывов
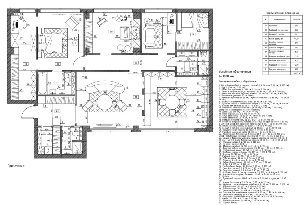
Проект квартиры "Дыхание города"
Проект квартиры для молодой семьи с двумя детьми (8 и 12 лет). Общая площадь - 135 квадратных метров. . Планировочное решение разделяет приватную и общественную зоны. Продумано много мест для хранения, отдельные гардеробные, в каждой зоне имеется санузел, что позволит избежать неудобств. . Интерьер достаточно насыщенный, присутствуют индустриальные мотивы, использование металла, стеклянных блоков и контраст фактур подчёркивают данную стилистику.
Другие фотографии в проекте
Вопросы к фото 0
Задайте вопрос
Вам ответят эксперты. Пришлем уведомление, когда вам ответят




