
Дизайнеры интерьера
0
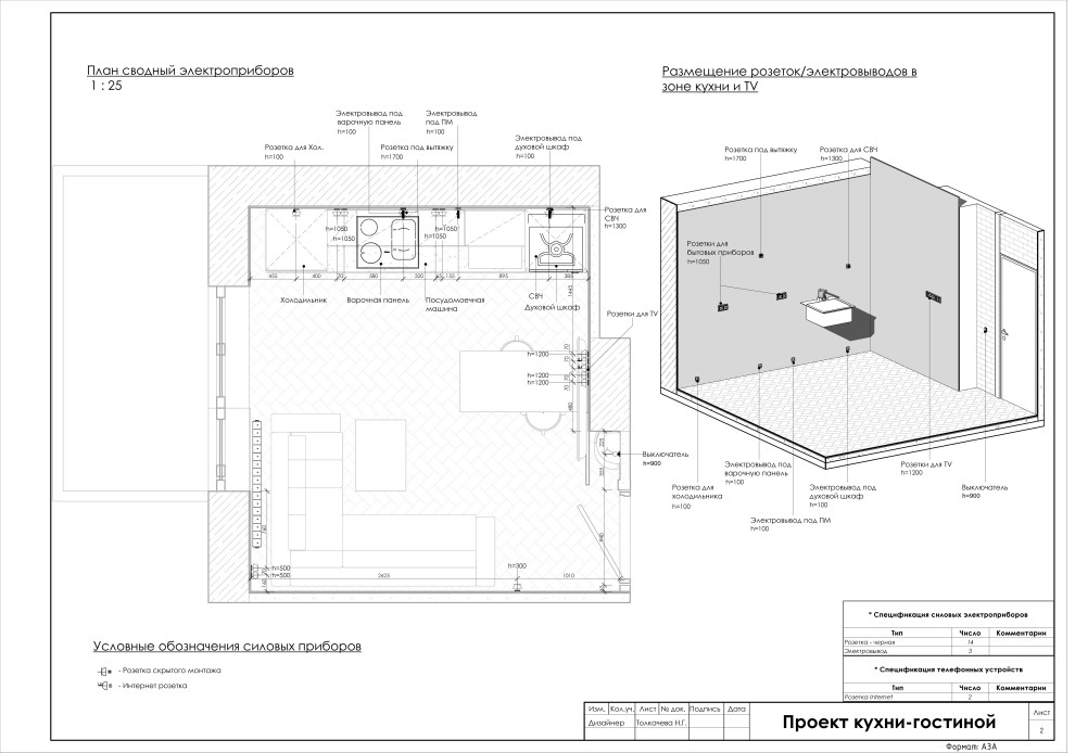
Проект кухни-гостиной
Это дизайн проект кухни-гостиной для молодой семьи из Санкт-Петербурга. Основной задачей было выделить 2 зоны в одном помещении: обеденную зону и зону для отдыха. Планировка с прямой кухней, двумя шкафами-пеналами по бокам. Обеденная зона - барная стойка. Зона отдыха - угловой диван с кофейным столиком напротив. Так как проект не предусматривал монтаж/демонтаж перегородок, стена за телевизором визуально продолжена декоративной стеклянной перегородкой до потолка. За перегородкой стеклянные полочки. Подготовлены 2 варианта стилистического решения: 1 - с 2 видами напольного покрытия (керамогранит в зоне кухни и паркетная доска в зоне гостиной) и перегородкой из закаленного стекла; 2 - с паркетной доской в качестве напольного покрытия и реечной перегородкой.
Другие фотографии в проекте
Вопросы к фото 0
Задайте вопрос
Вам ответят эксперты. Пришлем уведомление, когда вам ответят



