
Архитекторы
0
Проект коттеджа 300 м2 под Выборгом
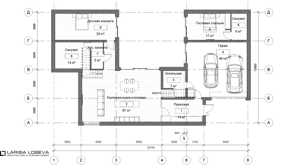
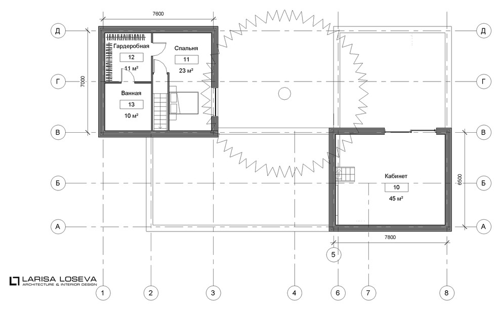
Эскизный проект коттеджа на 1 семью. 300 м2. . Коттедж представляет собой в плане букву «П». На первом этаже располагаются гараж, гостиная-кухня-столовая, котельная, хозяйственные помещения, санузел, детская комната и гостевая комната с отдельным входом. . Второй этаж – это два отдельных «кубика», в которые ведут разные лестницы. Первый – это помещение рабочего кабинета. Второй – помещение хозяйской спальни с гардеробной и ванной комнатой. . Снаружи коттедж представляет собой минималистичный замкнутый объем - одну сплошную стену, облицованную коричневым гладким кирпичом. Входная группа – дверь и въезд в гараж выделена светлой облицовочной доской планкеном. К дому через участок ведет широкая подъездная дорога, выложенная из плит «Голливуд». . Во внутренний двор выходят окна и раздвижные двери из помещений: гостиной, детской комнаты, гостевой комнаты и гаража. Таким образом, в разные помещения можно попасть более короткой дорогой. Центром двора является высокая сосна, которую с трех сторон окружает объем дома.
Другие фотографии в проекте
Вопросы к фото 0
Задайте вопрос
Вам ответят эксперты. Пришлем уведомление, когда вам ответят
house, minimalism, minimalist, Дома, Санкт-Петербург, Современный, кирпич, коттедж, минимализм
Похожие фотографии

Коттедж для г. Южно-Сахалинск 100 метров
Андрей Калинчук

Коттедж в стиле «Шале», в г. Альметьевск
Андрей Калинчук

Проект современного дома виллы в стиле Райта на склоне в лесу у воды по принципам Васту — 1560м2
Андрей Иевлев
Эскизный проект: Современный загородный дом в лесу + Интерьер
Михаил Конев
Вилла в итальянском стиле
V6 Group
Частный жилой дом, "КРАСНЫЙ ЯР", 2023 г.
Илья Овчинников
Усадьба в Златоусте
Ольга Вавилова
Усадьба в Златоусте
Ольга Вавилова
Усадьба в Златоусте
Ольга Вавилова
Усадьба в Златоусте
Ольга Вавилова
Усадьба в Златоусте
Ольга Вавилова





