Проект Hager

Другие фотографии в проекте Проект Hager

Вопросы к фото 0

Задайте вопрос

Вам ответят эксперты. Пришлем уведомление, когда вам ответят

Контемпорари, строительство загородных домов под ключ

Таисия

Таисия

Проектирование и строительство

Смотреть профиль

3

отзыва

5

Рейтинг

Проект Hager

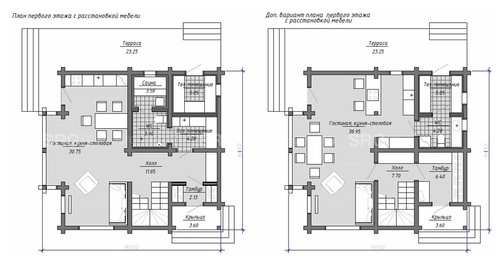
Площадь: 207 м2 . Комнат: 5 . Санузлов: 2 . Жилая площадь: 136 м² . Площадь террас и балконов: 37 м² . Технология: Клееный Брус . Категория: Standart . Теплый контур: 5 490 000 руб . Инженерные сети: 1 485 800 руб . Отделка: 1 251 200 руб . . итата из конструктивизма... . . Строгая геометрия и лаконичность форм проекта отличают этот коттедж от традиционных деревянных домов. . . В архитектуре доминирует компактный прямоугольный объём и такие характерные элементы, как столбы-опоры прямоугольного сечения и практически плоская крыша. . . Очевидно и влияние скандинавского стиля: использованное в окраске наружных стен сочетание цветов – черного (матовый) и охры (цвет сосновой коры). Заглубленные балконы, выступающие на фасадах эркеры с безрамным остеклением и просторная терраса позволяют наслаждаться природой в любую погоду. . . Скандинавские мотивы продолжаются и в интерьере. . Дизайн отличается простотой, спокойствием, лаконичностью – и при этом обладает особым очарованием и выразительностью. . . Интерьер комнаты в скандинавском стиле – светлое, свободное пространство, основательные, надежные предметы мебели, уютный текстиль и сдержанный декор

Вопросы к фото 0