
Проектирование и строительство
5
·
10 отзывов
Проект Garnet
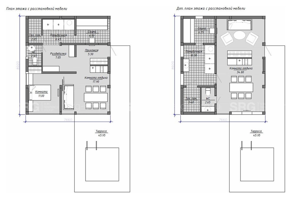
Площадь: 105 м2 . Комнат: 2 . Санузлов: 1 . Жилая площадь: 59 м² . Площадь террас и балконов: 45 м² . Технология: Фахверк . Категория: Guest & SPA . Теплый контур: 3 169 900 руб . Инженерные сети: 613 755 руб . Отделка: 784 243 руб . . Еще одни проект в категории гостевой дом и SPA. Сразу притягивает взгляд нетривиальная архитектура в стиле современный фахверк. Большая площадь остекления делает гостевую зону практически панорамной! . . В проекте мы предлагаем несколько планировочных решений: . - Полноценный дом с отдельной комнатой, гостиной и сауной . - SPA с большой гостевой комнатой и зоной отдыха
Другие фотографии в проекте
Вопросы к фото 0
Задайте вопрос
Вам ответят эксперты. Пришлем уведомление, когда вам ответят




