
Архитекторы
0
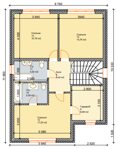
Проект двухэтажного дома 160 квм
Изначально планировался дом с плоской кровлей, в процессе строительства и просчета стоимости было принято решение заменить плоскую кровлю на скатную. На визуализациях можно посмотреть два варианта дома: с плоской и скатной кровлями .
Другие фотографии в проекте
Вопросы к фото 0
Задайте вопрос
Вам ответят эксперты. Пришлем уведомление, когда вам ответят




