logo
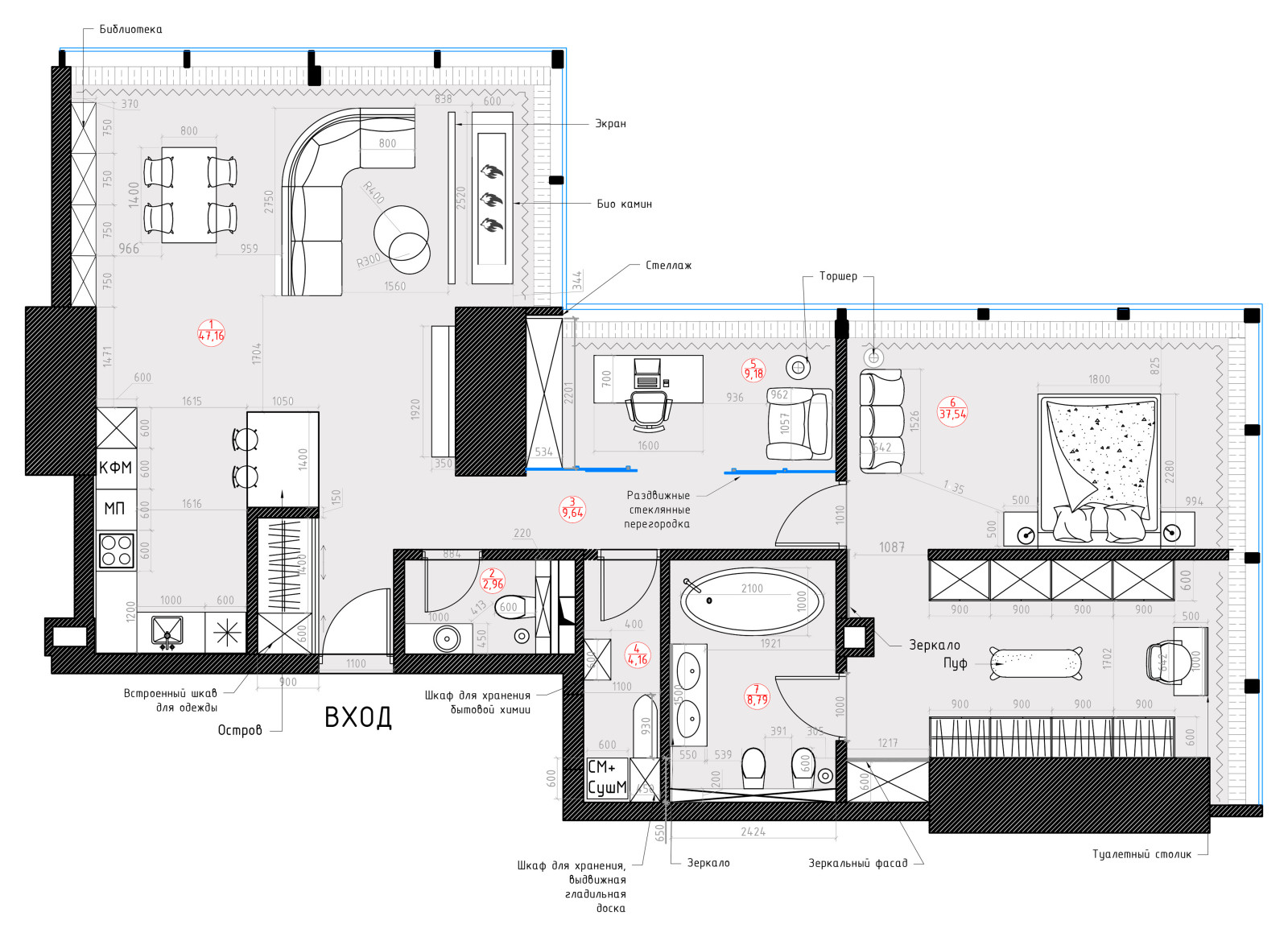
Планировочное решение с размерами для Проекта "Две стихии"

Другие фотографии в проекте Проект "Две стихии"

Вопросы к фото 0

Задайте вопрос

Вам ответят эксперты. Пришлем уведомление, когда вам ответят

Neva Towers, Декоративная штукатурка, Контемпорари, Москва, аппартаменты, большая гардеробная, кабинет, кухня-гостиная, светлая ванная, свобода, современный, темная кухня

Елена Андриевская

Елена Андриевская

Дизайнеры интерьера

Смотреть профиль

7

отзывов

5

Рейтинг

Проект "Две стихии"

Дизайн проект был разработан для молодой пары в рамках стажировки в Русской Академии Дизайна РАД. . Объект находится в Москва-Сити башни Neva Towers. . В проекте были объединены две квартиры в Апартаменты. . При проектировании были поставлены задачи по зонированию пространства: . - объединенная кухня-гостиная, . - гостевой санузел, . - зона постирочной, . - кабинет, . - спальня, . - гардеробная, . - ванная комната . При разработке планировочного решения были учтены все пожелания заказчика.

Вопросы к фото 0