Сначала новые
Вам ответят эксперты. Пришлем уведомление, когда вам ответят
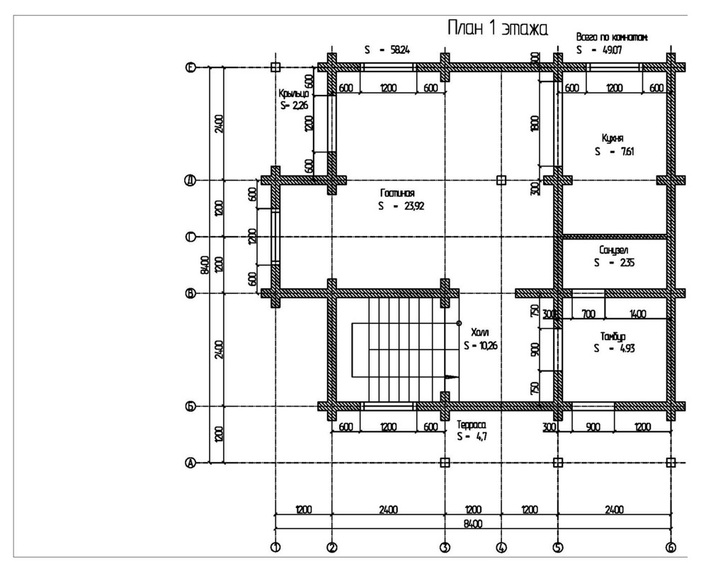
дом из бруса, к3-коттедж, красивый дом, проект, проект деревянного дома
Наталья
Проектирование и строительство
0
отзывов
Рейтинг
Наталья Пушкарева