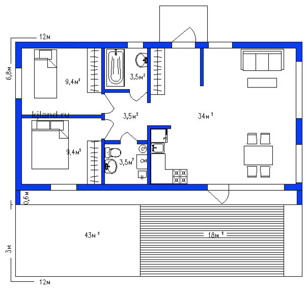
проект дома ПД75 от KJland.ru

Другие фотографии в проекте проект дома ПД75 от KJland.ru

проект дома ПД75 от KJland.ru

Вопросы к фото 0

Задайте вопрос

Вам ответят эксперты. Пришлем уведомление, когда вам ответят

Домодедово, Скандинавский