Проект дома на две большие семьи - дуплекс
Прожектстрой Егор

Прожектстрой Егор

Архитекторы

5

·

10 отзывов

Проект дома на две большие семьи - дуплекс

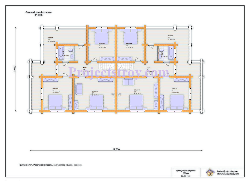
Проект дома на две большие семьи - дуплекс. . Сруб из рубленого окореного бревна 22.6 х 15 м - 481 кв. м . . Показатели для сметного расчета строительства: . -общая площадь дома - 481 кв. м; . -объем бревна 260 (паз 140) мм, заг. 6 м ~ 265 куб. м (отх.~9%); . -погонные метры стен ~ 4950 м; . -балки перекрытий - 100х200 мм; . -стропила - 50х200 мм; . -площадь кровли и периметр - 440 кв. м - 185 м; . -угол кровли ~15гр;. . -пог. м фундамента дома (ленточный - плита - сваи по востр.) - 215 м; . -высота 1-го этажа - 2.35-2.9 м; . -высота подъема стен 2-го этажа - от 2.2 м. . . Рекомендации по проекту архитектора: объединение гостиной и кухни по желанию. . . http://projectstroy.com/project_r_22.html

Другие фотографии в проекте

Проект дома на две большие семьи - дуплексПроект дома на две большие семьи - дуплексПроект дома на две большие семьи - дуплексПроект дома на две большие семьи - дуплекс

Вопросы к фото 0

Задайте вопрос

Вам ответят эксперты. Пришлем уведомление, когда вам ответят