Проект дома Экодолье

Другие фотографии в проекте Проект дома Экодолье

Вопросы к фото 0

Задайте вопрос

Вам ответят эксперты. Пришлем уведомление, когда вам ответят

Москва

Алина Февралёва

Алина Февралёва

Дизайнеры интерьера

Смотреть профиль

10

отзывов

4.9

Рейтинг

Проект дома Экодолье

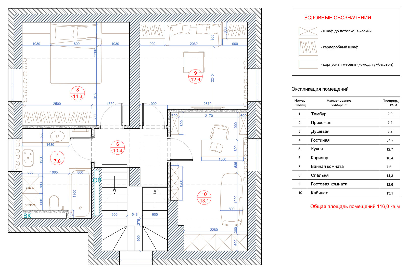
Просторный дом для молодой пары в ближнем подмосковье задумывался для долгой семейной жизни с надеждой на увеличение семейства. В доме будет всё необходимое для постоянного проживания и для работы. Стиль и цветовая гамма выбирались очень спокойные, приближенные к природности. Тёплую молочно-шоколадную гамму лишь изредко разбавляют яркие цветовые акценты, но так же из присутствующей в природе гамме. Контрастность в отделке призвана сделать интерьер не скучным и вечно свежим. Надеюсь так полюбившейся мне семье будет комфортно здесь пустить корни.

Вопросы к фото 0