
Архитекторы
5
·
10 отзывов
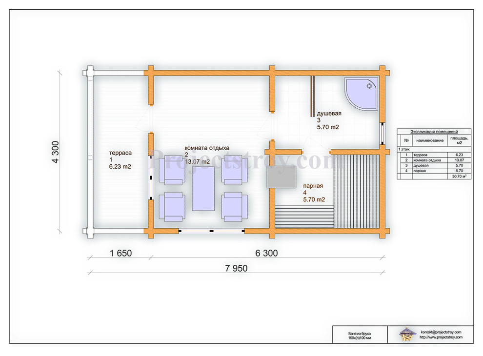
Проект брусовой бани 8 на 4 м
Одноэтажная баня из бруса 150х(h)100 мм. . Размер по осям 7.85 х 4.3 м. . . Рыночный размер и профиль бруса - под баню для самостоятельного строительства. . В зависимости от площади застройки - меняем размер бани, из длин бруса 6 м. . . Показатели для сметного расчета строительства P-32: . -общая площадь - 31 кв. м; . -объем бруса 150х(h)100 мм ~ 17 куб. м (отход~11%); . -балки перекрытий - 100х150, 50х150 мм; . -стропила - 50х150 мм; . -площадь кровли и периметр - 61 кв. м и 51 м; . -угол кровли ~ 29 гр.; . -пог. м фундамента дома (ленточный - плита - сваи по востр.) - 37 м; . -высота 1-го этажа - 2.28 м. . . http://projectstroy.com/project_p_32.html
Другие фотографии в проекте
Вопросы к фото 0
Задайте вопрос
Вам ответят эксперты. Пришлем уведомление, когда вам ответят


