
Архитекторы
0
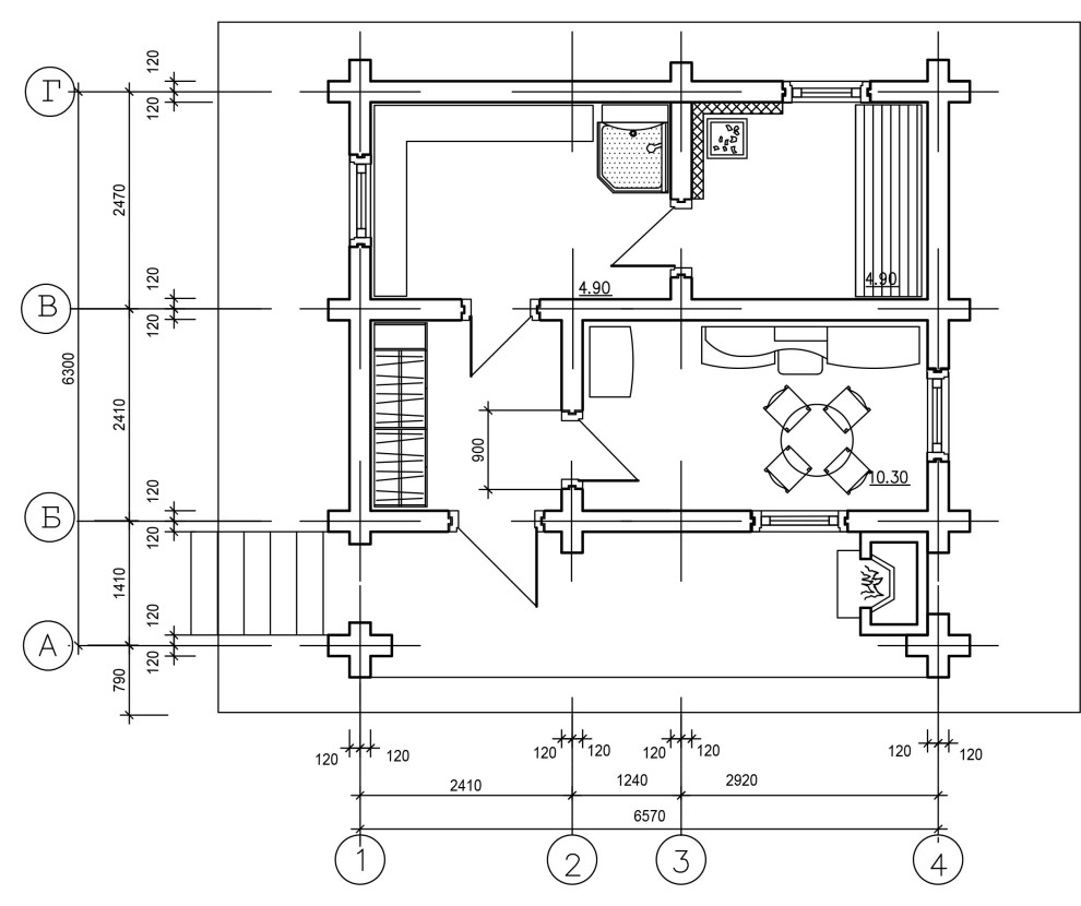
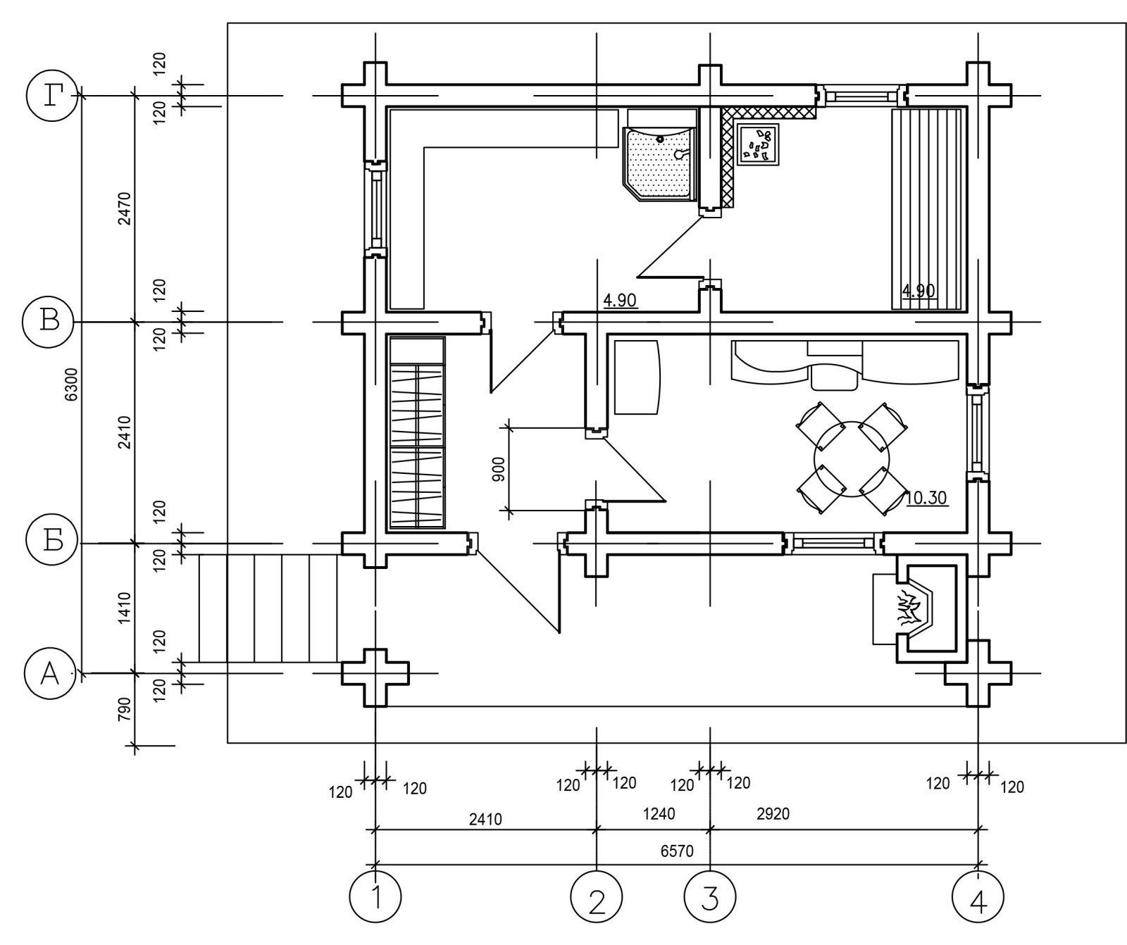
Проект бани в Иркутском районе
Проект русской бани в Иркутском районе. В чем преимущество сибиряков, это то, что можно в выходные или праздники выбраться на природу и попариться в бане с друзьями. Сугробы, солнце и запах дерева в парилке... Выполнил данный проект в качестве сопутствующей постройки для существующего дома, по просьбе заказчика разместил летний мангал на террасе.
Другие фотографии в проекте
Вопросы к фото 0
Задайте вопрос
Вам ответят эксперты. Пришлем уведомление, когда вам ответят

