Проект бани - садового домика - хозяйственной постройки 5.4 х 5.4 - 20 кв. м
Прожектстрой Егор

Прожектстрой Егор

Архитекторы

5

·

10 отзывов

Проект бани - садового домика - хозяйственной постройки 5.4 х 5.4 - 20 кв. м

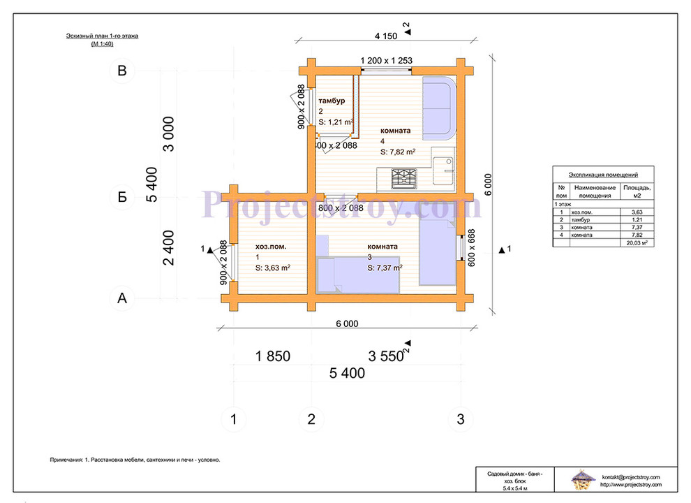
Проект бани - садового домика - хозяйственной постройки 5.4 х 5.4 - 20 кв. м. . . Есть желание и возможность поучаствовать в небольшой стройке? . . Проектная документация по цене менее 1 куб. пиломатериала. . Пиломатериал силовой части сруба менее 30 куб. м - доставка одной машиной. . . Для кого и зачем: . - первая постройка на новом участке; . - баня своими руками; . - хоз. постройка; . - проверить подрядчика-строителей на первом строении; . - занять полезной деятельностью себя на даче) . . Показатели для сметного расчета строительства: . -общая площадь - 20 кв. м; . -объем бревна 200 (паз 110) мм, заг. 6 м ~ 19 куб. м (отх.~2%); . -объем бруса 195х(h)145 мм, заг. 6 м ~ 22 куб. м (отх.~2%); . -погонные метры стен ~ 600 и 760 м; . -балки перекрытий - 100х150 мм; . -стропила - 50х150 мм; . -площадь кровли и периметр - 52 кв. м - 43 м; . -угол кровли ~16-22 гр;. . -пог. м фундамента дома (ленточный) - 30 м; . -столбов фундамент - 12 шт.; . -высота 1-го этажа - 2.4 м. . . Рекомендации по проекту архитектора: убираем на планировке хоз. помещение по желанию. . . http://www.projectstroy.com/project_d_22.html . . #Projectstroy #Дом_из_бревна #Загородный_дом #Дом_для_дачи #Сруб_из_бревна #Проект_дома #Деревянные_дома #Баня #Хоз_постройка

Другие фотографии в проекте

Проект бани - садового домика - хозяйственной постройки 5.4 х 5.4 - 20 кв. мПроект бани - садового домика - хозяйственной постройки 5.4 х 5.4 - 20 кв. мПроект бани - садового домика - хозяйственной постройки 5.4 х 5.4 - 20 кв. м

Вопросы к фото 0

Задайте вопрос

Вам ответят эксперты. Пришлем уведомление, когда вам ответят