
Архитекторы
0
Проект бани
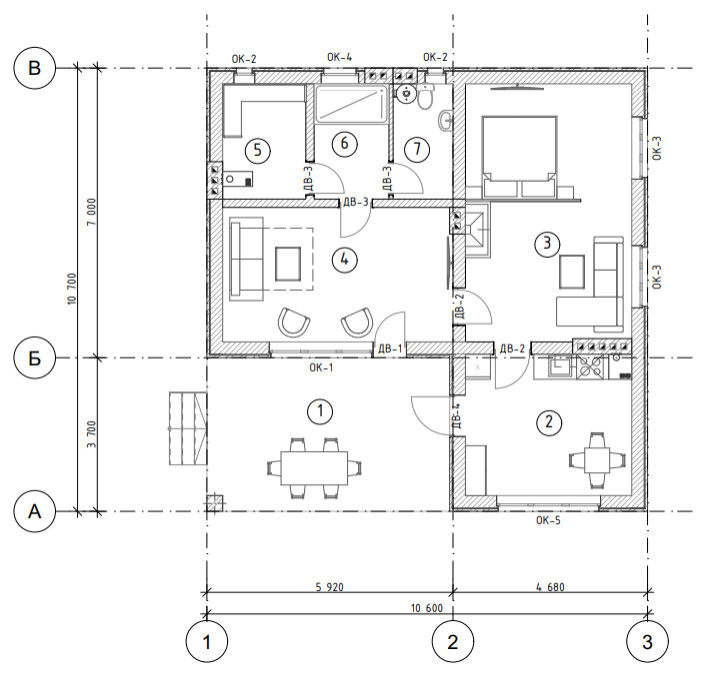
В апреле 2020 года ко мне обратился заказчик, у которого уже был фундамент на участке и он собирался разместить на нем баню. . Хотелось чтобы в бане была парильная зона, душевая комната, комната отдыха, кухонная зона и помещение спальни, которое можно было бы отделить переносной перегородкой на случай большого количества гостей, которых невозможно одновременно разместить в доме. . Все пожелания заказчика были учтены и получилась такая красивая баня с разноуровневой крышей в скандинавском стиле. . . Планируете строительство бани и нужен проект? С удовольствием сделаю идеальный проект именно для вас.
Другие фотографии в проекте
Вопросы к фото 0
Задайте вопрос
Вам ответят эксперты. Пришлем уведомление, когда вам ответят




