
Дизайнеры интерьера
5
·
10 отзывов
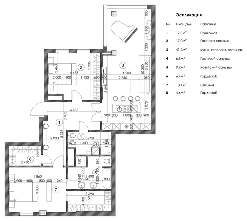
Проект 64 - Интерьер квартиры
Квартира 120 кв.м. в центре Москвы. Квартира спроектирована для семьи из 4 человек. Супруги и 2 взрослых детей. Квартиру планируется использовать как место временных остановок, поскольку постоянно вся семья живет в Европе. Именно этим обусловлено наличие всего 2 спален.
Другие фотографии в проекте
Вопросы к фото 0
Задайте вопрос
Вам ответят эксперты. Пришлем уведомление, когда вам ответят




