Вам ответят эксперты. Пришлем уведомление, когда вам ответят
Екатеринбург, Проекты домов, комбинированный дом, проект дома
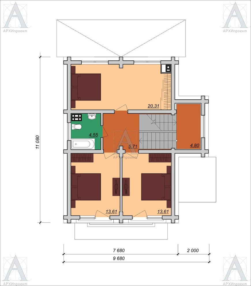
Проект 001 - компактный дом с каменным цокольным и первым этажами и мансардным этажом из бруса, в котором находятся спальни. Комбинированный дом - это удачное совмещение неизменности конструкций первых этажей и природного колорита деревянных стен верхнего этажа. . http://arhi-proekt-doma.ru/projects/proekt-1 . . #проект_дома #дом #коттедж #проект_коттеджа .