Другие фотографии в проекте Prairie house 200+50+30
Вам ответят эксперты. Пришлем уведомление, когда вам ответят
itarc, Пермь, Проект дома в стиле райта, Средиземноморский, Стиль Райта, Стиль прерий, Экстерьеры, архитектор Трясцин Илья, проект дома в стиле прерий
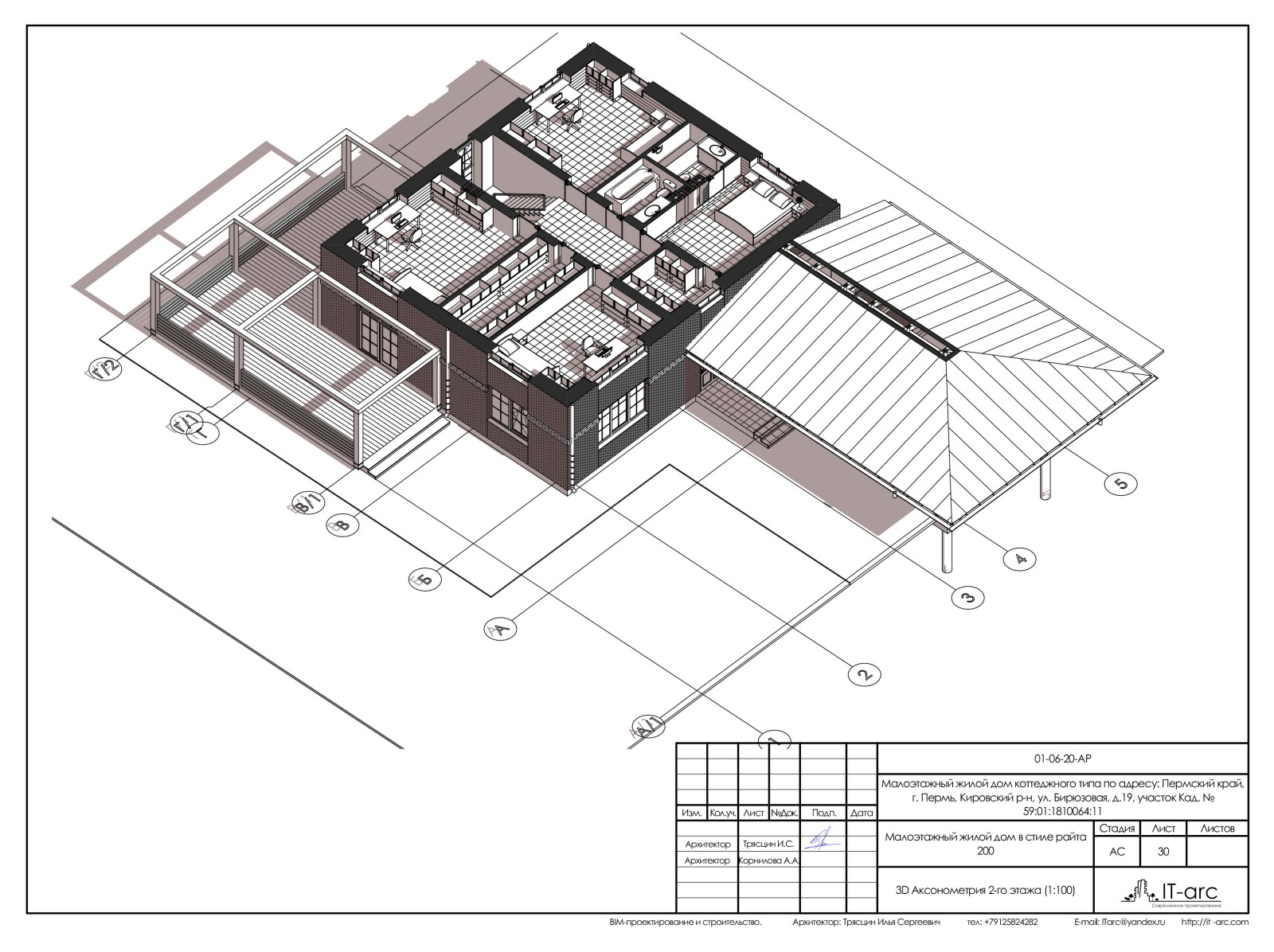
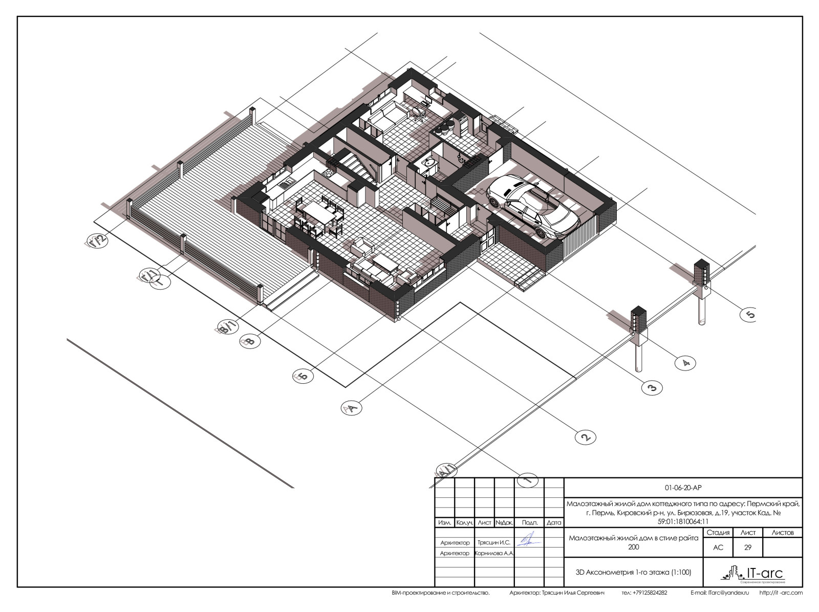
https://youtu.be/7A_Q7AdOh_Y . . Проект 2-этажного дома из газобетона . S=201,7 кв. м. . . 1-й этаж: . Тамбур - 3 кв. м . Холл - 9,4 кв. м . Кухня- гостиная - 39,9 кв. м . Гостевая-кабинет – 14,7 кв. м . Санузел с душем -3,8 кв. м . Гараж -25,2кв. м . Тех. помещение - 5,2 кв. м . Кладовка -2,2 кв. м . Лестница -3,2 кв. м . . Терраса - 48,2 кв.м. . Навес - 27 кв.м. . . 2-й этаж: . Лестница -5,8 кв. м . Холл - 8,2 кв. м . Спальня - 16,7 кв. м . Детская - 16,4 кв. м . Детская - 13,5 кв. м . Гардероб - 8,6 кв. м . Санузел с ванной - 4,0 кв. м . Мастер спальня 13,2 кв. м с ванной 3,8 кв. м и Гардеробом 4,2 кв. м

Old House Resort&Spa и бутик-отель Green Hill
Источник вдохновения для домашнего уюта: дом в средиземноморском стиле
Евгения Минакер (Зорина)

Розмарин. Ландшафтный Дизайн
Идея дизайна: дом в средиземноморском стиле
Владимир Меркулов

Дом на Северном склоне
Стильный дизайн: дом в средиземноморском стиле - последний тренд
Владимир Симоненко

Дом на Северном склоне
На фото: двухэтажный, белый дом в средиземноморском стиле с плоской крышей с
Владимир Симоненко

Проект дома 194 в Средиземноморском стиле
На фото: дом в средиземноморском стиле
Ilya Triastsin

Проект благоустройства и озеленения территории в Подмосковье
Пример оригинального дизайна: одноэтажный, деревянный дом в средиземноморском стиле с отделкой доской с нащельником
Даша Косса

Уютный дом с двумя спальнями и террасой
Идея дизайна: дом в средиземноморском стиле
Игорь Николаевич

Каширское шоссе
Источник вдохновения для домашнего уюта: одноэтажный, деревянный, коричневый частный загородный дом среднего размера в средиземноморском стиле с двускатной крышей и крышей из гибкой черепицы
Антон Кузнецов

Каширское шоссе
На фото: одноэтажный, деревянный, коричневый частный загородный дом среднего размера в средиземноморском стиле с двускатной крышей и крышей из гибкой черепицы с
Антон Кузнецов

Каширское шоссе
Источник вдохновения для домашнего уюта: одноэтажный, деревянный, коричневый частный загородный дом среднего размера в средиземноморском стиле с двускатной крышей и крышей из гибкой черепицы
Антон Кузнецов

Проект дома в Италии. Реконструкция
Идея дизайна: дом в средиземноморском стиле
Наталья Кострикина

Коттеджный сад в Барвихе (дизайн и исполнение компании "Imperial Garden")
На фото: дом среднего размера в средиземноморском стиле
Andrey Lysikov

Участок в Ломоносовском районе Ленобласти
Идея дизайна: двухэтажный, бежевый частный загородный дом среднего размера в средиземноморском стиле с облицовкой из цементной штукатурки, плоской крышей и черепичной крышей
Анастасия Михайлова

Частный дом Сергиев Пасад
Свежая идея для дизайна: большой, трехэтажный, кирпичный, бежевый частный загородный дом в средиземноморском стиле с мансардной крышей и металлической крышей - отличное фото интерьера
Закалата Мария

загородный дом
Стильный дизайн: дом в средиземноморском стиле - последний тренд
Tatiana Pozdina

загородный дом
На фото: дом в средиземноморском стиле
Tatiana Pozdina

Villa Argaka. Cyprus.
Источник вдохновения для домашнего уюта: дом в средиземноморском стиле
Valeriy Aleksandrovich Lazarenko

Дом на берегу реки
Свежая идея для дизайна: большой, трехэтажный, бежевый итальянский частный загородный дом в средиземноморском стиле с облицовкой из цементной штукатурки, металлической крышей и двускатной крышей - отличное фото интерьера
Елена Тимченко

Никульское
Свежая идея для дизайна: двухэтажный дом среднего размера в средиземноморском стиле с облицовкой из цементной штукатурки и вальмовой крышей - отличное фото интерьера
Юрий Скороходов

Никульское
Идея дизайна: двухэтажный дом среднего размера в средиземноморском стиле с облицовкой из цементной штукатурки и вальмовой крышей
Юрий Скороходов

Никульское
Источник вдохновения для домашнего уюта: двухэтажный дом среднего размера в средиземноморском стиле с облицовкой из цементной штукатурки и вальмовой крышей
Юрий Скороходов

Никульское
Пример оригинального дизайна: двухэтажный дом среднего размера в средиземноморском стиле с облицовкой из цементной штукатурки и вальмовой крышей
Юрий Скороходов

Никульское
Пример оригинального дизайна: двухэтажный дом среднего размера в средиземноморском стиле с облицовкой из цементной штукатурки и вальмовой крышей
Юрий Скороходов

Никульское
Стильный дизайн: большой, двухэтажный дом в средиземноморском стиле с облицовкой из цементной штукатурки и вальмовой крышей - последний тренд
Юрий Скороходов

Никульское
Источник вдохновения для домашнего уюта: двухэтажный дом в средиземноморском стиле с облицовкой из цементной штукатурки
Юрий Скороходов

Применение камня песчаника-плитняка в облицовке фасада (стен дома)
Идея дизайна: дом в средиземноморском стиле
Максим Иванов

Строительство загородного дома из теплоблоков.
Свежая идея для дизайна: двухэтажный, серый дом среднего размера в средиземноморском стиле с облицовкой из бетона и мансардной крышей - отличное фото интерьера
Дмитрий

Дача «Мурад-Авур» Н.Н. Комстадиуса в Мисхоре
Стильный дизайн: трехэтажный, бежевый вилла в средиземноморском стиле с облицовкой из камня - последний тренд
Маргарита Федина

Отделка фасадов
Пример оригинального дизайна: итальянский дом в средиземноморском стиле с облицовкой из камня
Олег Легарт

Favo house / Усадьба Фаво
Стильный дизайн: большой, двухэтажный, бежевый частный загородный дом в средиземноморском стиле с облицовкой из камня, вальмовой крышей и черепичной крышей - последний тренд
Victor Boos

Favo house / Усадьба Фаво
Идея дизайна: большой, двухэтажный, бежевый частный загородный дом в средиземноморском стиле с облицовкой из камня, вальмовой крышей и черепичной крышей
Victor Boos

Favo house / Усадьба Фаво хаус
На фото: большой, двухэтажный, бежевый частный загородный дом в средиземноморском стиле с облицовкой из камня, вальмовой крышей и черепичной крышей с
Victor Boos

Вилла на юге Франции
Идея дизайна: дом в средиземноморском стиле
Дмитрий

Северный Голливуд - Лос Анджелес. Дом в средиземноморском стиле.
На фото: дом в средиземноморском стиле
Александр Феоктистов

Северный Голливуд - Лос Анджелес. Дом в средиземноморском стиле.
На фото: дом в средиземноморском стиле с
Александр Феоктистов

Северный Голливуд - Лос Анджелес. Дом в средиземноморском стиле.
Идея дизайна: дом в средиземноморском стиле
Александр Феоктистов

Северный Голливуд - Лос Анджелес. Дом в средиземноморском стиле.
Стильный дизайн: дом в средиземноморском стиле - последний тренд
Александр Феоктистов

Беверли Хиллз - Лос Анджелес
Источник вдохновения для домашнего уюта: дом в средиземноморском стиле
Александр Феоктистов

Беверли Хиллз - Лос Анджелес
Идея дизайна: дом в средиземноморском стиле
Александр Феоктистов

Беверли Хиллз - Лос Анджелес
На фото: дом в средиземноморском стиле
Александр Феоктистов

Беверли Хиллз - Лос Анджелес
Идея дизайна: дом в средиземноморском стиле
Александр Феоктистов

Искусственный камень в экстерьере
Идея дизайна: вилла в средиземноморском стиле
KAMBRICK

Визуализация виллы. Франция, Антибы.
На фото: дом в средиземноморском стиле
Дмитрий Бородавкин

Реконструкция частного дома с увеличением площади в Подмосковье.
На фото: дом в средиземноморском стиле с
Иван Кулаков