logo
Prairie house 200+50+30

Другие фотографии в проекте Prairie house 200+50+30

Вопросы к фото 0

Задайте вопрос

Вам ответят эксперты. Пришлем уведомление, когда вам ответят

Ilya Triastsin

Ilya Triastsin

Архитекторы

Смотреть профиль

3

отзыва

5

Рейтинг

Prairie house 200+50+30

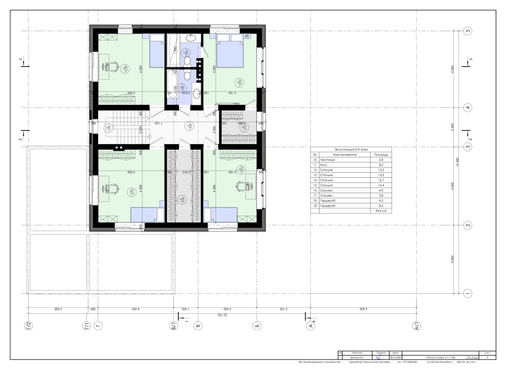
https://youtu.be/7A_Q7AdOh_Y . . Проект 2-этажного дома из газобетона . S=201,7 кв. м. . . 1-й этаж: . Тамбур - 3 кв. м . Холл - 9,4 кв. м . Кухня- гостиная - 39,9 кв. м . Гостевая-кабинет – 14,7 кв. м . Санузел с душем -3,8 кв. м . Гараж -25,2кв. м . Тех. помещение - 5,2 кв. м . Кладовка -2,2 кв. м . Лестница -3,2 кв. м . . Терраса - 48,2 кв.м. . Навес - 27 кв.м. . . 2-й этаж: . Лестница -5,8 кв. м . Холл - 8,2 кв. м . Спальня - 16,7 кв. м . Детская - 16,4 кв. м . Детская - 13,5 кв. м . Гардероб - 8,6 кв. м . Санузел с ванной - 4,0 кв. м . Мастер спальня 13,2 кв. м с ванной 3,8 кв. м и Гардеробом 4,2 кв. м

Вопросы к фото 0