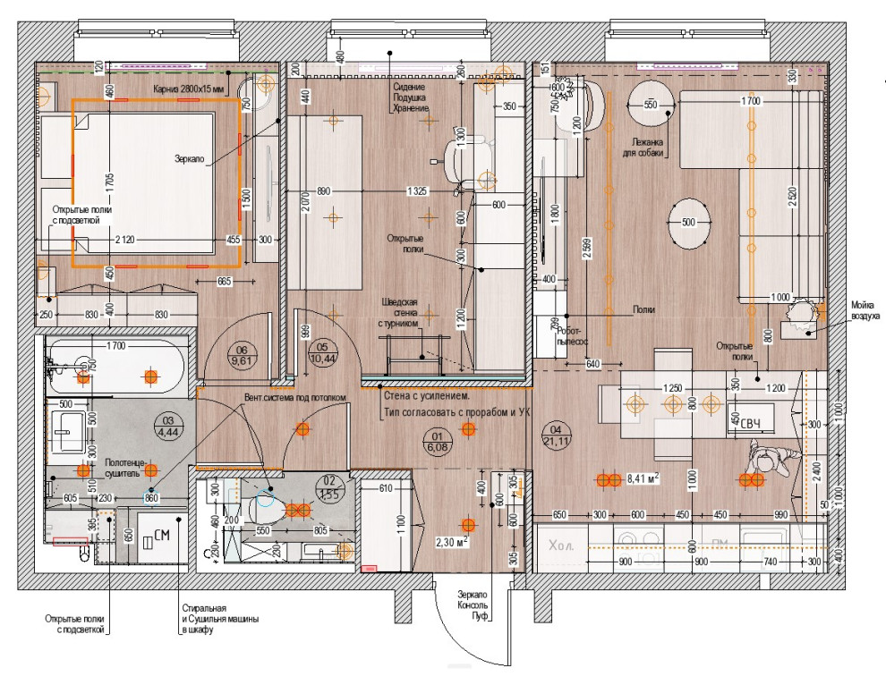
Планировочные решения

Другие фотографии в проекте Планировочные решения

Вопросы к фото 0

Задайте вопрос

Вам ответят эксперты. Пришлем уведомление, когда вам ответят

Контемпорари, Москва