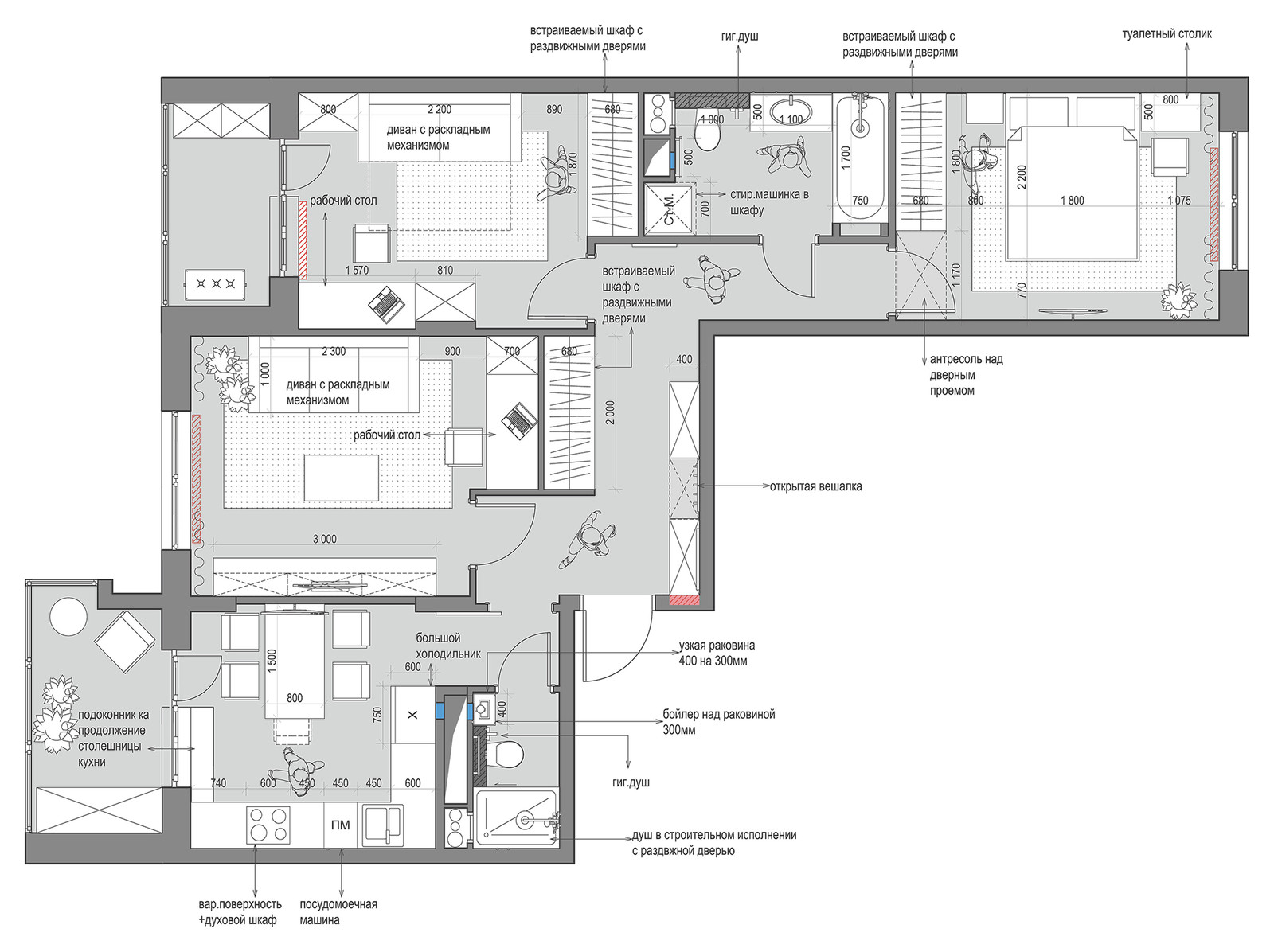
Планировка 3х комнатной квартиры ЖК "Гринада"

Вопросы к фото 0

Задайте вопрос

Вам ответят эксперты. Пришлем уведомление, когда вам ответят