
Архитекторы
0
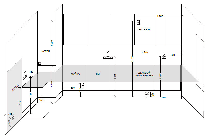
План розеток и план фартука.
Изготовление плана размещения розеток и раскладка фартука с учетом пожеланий заказчика. Представленны три объекта. . Автор Олиферчик Надежда.
Другие фотографии в проекте
Вопросы к фото 0
Задайте вопрос
Вам ответят эксперты. Пришлем уведомление, когда вам ответят


