logo
ПЕТЕРБУРГ - ПУШКИН 60 м

Другие фотографии в проекте ПЕТЕРБУРГ - ПУШКИН 60 м

Вопросы к фото 0

Задайте вопрос

Вам ответят эксперты. Пришлем уведомление, когда вам ответят

Переходный, Санкт-Петербург

Полина Кохно

Полина Кохно

Архитекторы

Смотреть профиль

10

отзывов

5

Рейтинг

ПЕТЕРБУРГ - ПУШКИН 60 м

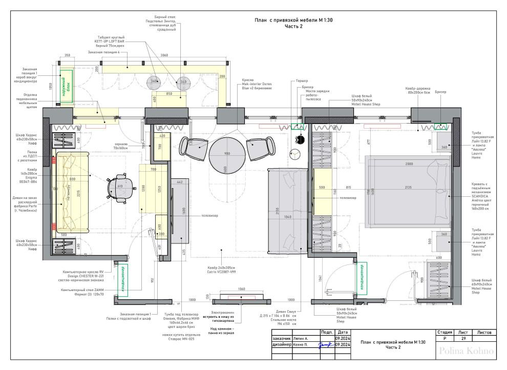
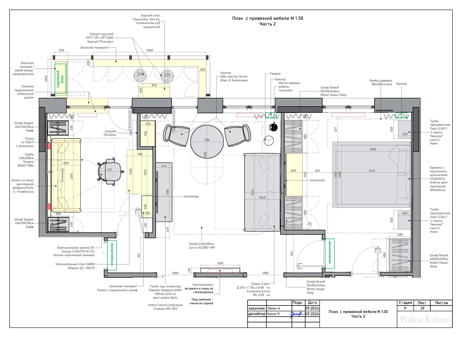
Проект выполнен для супружеской пары в возрасте (кстати это родители моей первой заказчицы!). Квартира семейная, с расчётом на то что будут нередко приезжать взрослые дети и внуки. . . . Пожелания заказчиков: . - современная классика, домашняя и не строгая . - нравится синий цвет, также готовы к ярким краскам . - очень важны спальные места для гостей . - хочется из холодной лоджии сделать полноценную комнату . - жена любит в доме порядок, был целый ряд пунктов касаемо . хранения обуви и организации постирочной . - для мужа нужен кабинет для работы из дома . . На данный момент (2025 г) идёт ремонт, был стрессовый момент в самом начале: при демонтаже обнаружилась труба в стене которой нет на плане. Пришлось быстро адаптировать все чертежи). . . Фишечки проекта: . . - высокие роскошные порталы в гостиной создают эффект высоких потолков . - есть электрокамин с зеркальным панно . - на лоджии получилась атмосфера мини-кафе . - активно применяется недорогая мебель с доработкой: заранее выставляются короба, поднимается цоколь под плинтус и т.д. .

Вопросы к фото 0