
Дизайнеры интерьера
5
·
10 отзывов
Павловский Посад (Pavlovsky Posad)
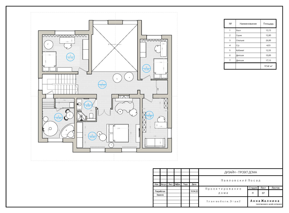
Проект загородного дома 270 кв/м, . Павловский Посад, Московская Область . Скандинавский стиль . . Двухэтажный дом 270 кв м расположен недалеко от Павловского Посада. Просторная гостиная со вторым светом переходит в кухню. На кухне запроектирован кухонный остров, духовой шкаф на уровне рук и большой холодильник. В гостинной предполагается обеденный стол на 8-10 человек, большой диван и каминная зона. . Так же на первом этаже расположен просторный санузел, гостевая, спальня и котельная с прачечной. . На втором этаже: две детские, кабинет, мастер-спальня и и небольшой санузел. . Скандинавский интерьер разбавлен элементами стиля лофт. . . Country house project 270 sq/m, . Pavlovsky Posad, Moscow Region . Scandinavian style . . A two-story house of 270 sq. m is located near Pavlovsky Posad. A spacious living room with second light opens into the kitchen. The kitchen is designed with a kitchen island, an oven at hand level and a large refrigerator. The living room is supposed to have a dining table for 8-10 people, a large sofa and a fireplace area. . Also on the ground floor there is a spacious bathroom, a guest room, a bedroom and a boiler room with a laundry room. . On the second floor: two children's rooms, an office, a master bedroom and a small bathroom. . The Scandinavian interior is diluted with loft style elements.
Другие фотографии в проекте
Вопросы к фото 0
Задайте вопрос
Вам ответят эксперты. Пришлем уведомление, когда вам ответят




