
Дизайнеры интерьера
0
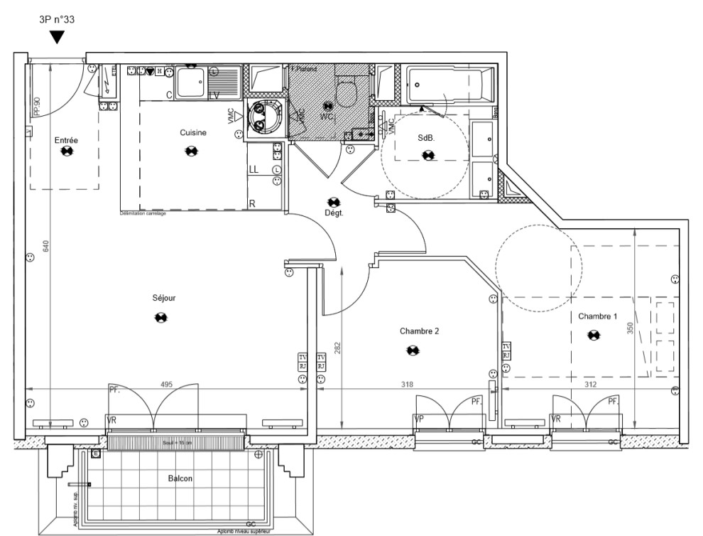
Парижская квартира
Заказчики проекта- молодая русская пара, которая проживает в Париже. . На момент обращения квартира уже была сдана застройщиком со стандартной чистовой отделкой и клиенты хотели как можно скорее въехать. . Задача состояла в том, чтобы в кратчайшие сроки разработать планировку основных помещений и наполнить ее мебелью «из наличия», предлагаемой в местных интернет- магазинах. Основной сложностью в работе была привязка к существующим выводам электричества, но нам удалось выстроить интерьер в соответствии с пожеланиями заказчика, не прибегая к какому-либо строительному вмешательству. . Все общение и согласование проходило онлайн и через доступные мессенджеры. По результатам работы клиентам были переданы: финальная планировка с основными размерами, коллажи, демонстрирующие сочетание цветов и фактур в будущем интерьере, и файл со ссылками на представленные на коллажах предметами мебели, света и декора. . Я благодарна за подобный интересный опыт с заграничной недвижимостью и оперативные ответы клиентов, которые помогли нам осуществить задуманное и уложиться в сроки. .
Другие фотографии в проекте
Вопросы к фото 0
Задайте вопрос
Вам ответят эксперты. Пришлем уведомление, когда вам ответят



