
Дизайнеры интерьера
0
"Осеннее сияние" из серии интерьеров Состояния природы
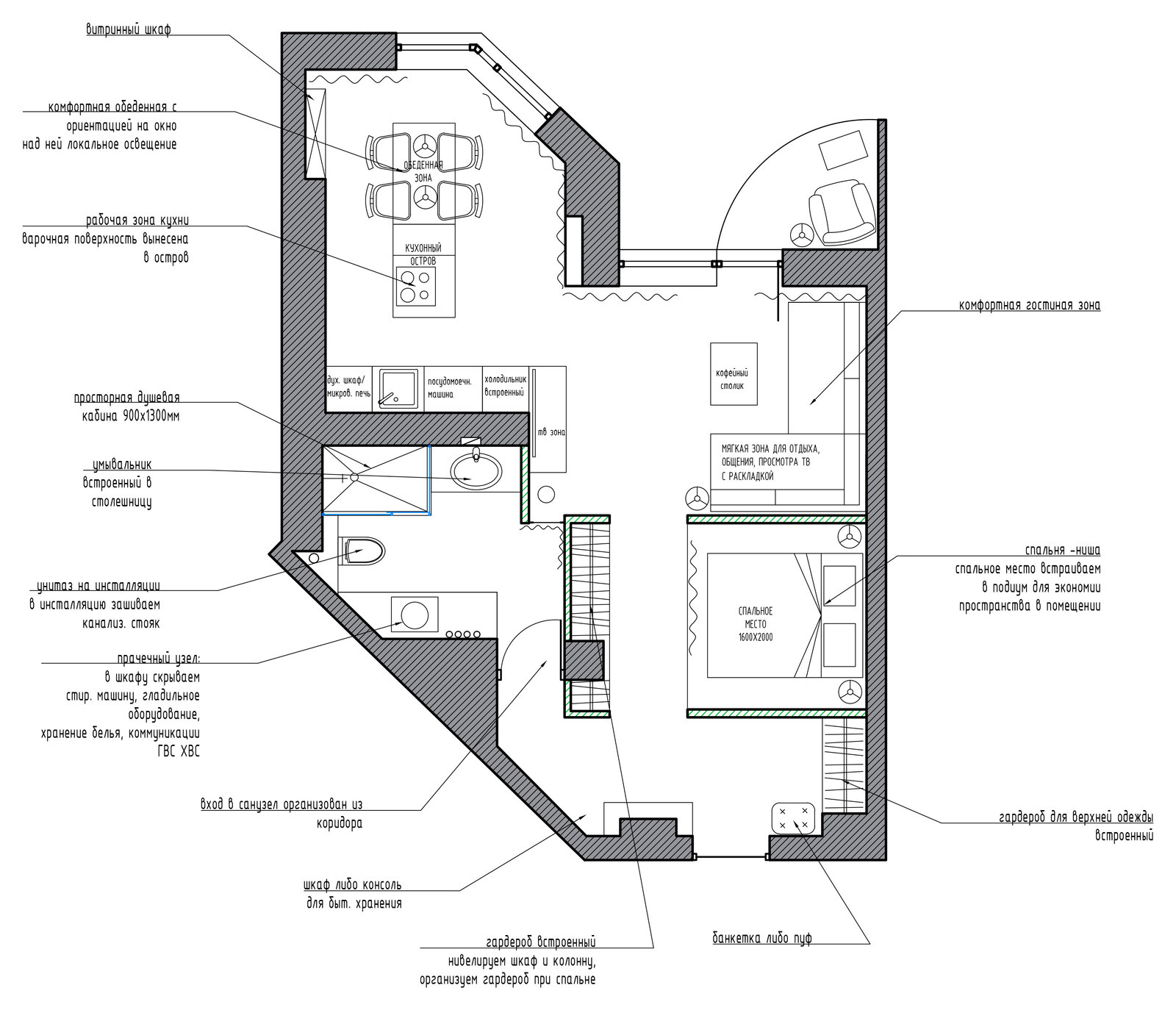
Millimetrika дизайн бюро . Архитектор Иван Чирков . Дизайнер Елена Чиркова . фотограф Вячеслав Ефимов . . Однокомнатная квартира в центре Екатеринбурга площадью 50 квадратных метров от бюро MILLIMETRIKA. . . Планировка выстроена таким образом, что в однокомнатной квартире уместились комфортная зона кухни, гостиная и спальня с гардеробом. . . Пространство квартиры сформировано 2-мя сопрягающимися через стекло кубами. В первом кубе размещена спальня и гардероб. Второй куб в шпоне американского ореха. Одна из его стен образует объем с кухонным оборудованием, другая, обращённая к дивану, служит экраном для телевизора. За стеклом, соединяющим эти кубы, располагается санузел, который инсолируется естественным светом. . За счет опуска куба спальни, стеклянной перегородки санузла и атмосферного освещения удалось добиться эффекта единого «неба» над всей квартирой. Отделка пола керамогранитом под каррарский мрамор в холле перетекает в санузел, а затем на кухню. Эти решения создают целостный неделимый облик всех функциональных зон интерьера. . Пространство несет в себе образ состояния уральской осенней природы. Скалы, осенний лес, стаи улетающих птиц. Все это запечатлено в деталях и отделочных материалах интерьера квартиры. . Строительные работы заняли примерно полгода. Была произведена реконструкция квартиры с полной перепланировкой. Интерьер выдержан в авторской стилистике бюро Миллиметрика. Это отразилось на выборе материалов — все они подобраны в соответствии с образом решением. Сложные оттенки пожухшей листвы, припыленных скал, каррарский мрамор, древесина ореха. Птицы в полете, широко раскинувшие крылья над обеденной и тв зоной вот-вот улетят на юг, это серия светильников Night birds, "ночные птицы" дизайнера Бориса Климека. Композиция на стене напротив острова кухни из светящихся колец выполнена индивидуально по авторскому эскизу. .
Другие фотографии в проекте
Вопросы к фото 0
Задайте вопрос
Вам ответят эксперты. Пришлем уведомление, когда вам ответят
$$, Drop-in, Безбордюрная, Белый, Ванная комната, Ванная с душем, унитазом и раковиной, Гладкий фасад, Екатеринбург, Искусственный камень, Керамогранит, Контемпорари, Коричневый, Подвесной, Раздвижная дверь, Средний, дизайн бюро миллиметрика, дизайн интерьера в екатеринбурге, дизайн проект квартиры в екатеринбурге, дизайн проект квартиры от бюро Миллиметрика, современный дизайн интерьера
Похожие фотографии

Реализованная квартира в ЖК Уникум
На фото: маленькая ванная комната в белых тонах с отделкой деревом со стиральной машиной в современном стиле с плоскими фасадами, белыми фасадами, угловым душем, инсталляцией, коричневой плиткой, керамогранитной плиткой, белыми стенами, полом из керамогранита, душевой кабиной, столешницей из искусственного камня, белым полом, душем с раздвижными дверями, белой столешницей, тумбой под одну раковину и подвесной тумбой для на участке и в саду
Алсу Зарипова

Реализованная квартира в ЖК Уникум
Идея дизайна: маленькая ванная комната в белых тонах с отделкой деревом в современном стиле с плоскими фасадами, фасадами цвета дерева среднего тона, угловым душем, инсталляцией, белой плиткой, керамогранитной плиткой, коричневыми стенами, полом из керамогранита, душевой кабиной, накладной раковиной, столешницей из искусственного камня, белым полом, душем с раздвижными дверями, белой столешницей, зеркалом с подсветкой, тумбой под одну раковину и подвесной тумбой для на участке и в саду
Алсу Зарипова

Квартира 98м² в ЖК Парадный Квартал
Идея дизайна: ванная комната среднего размера в современном стиле с стеклянными фасадами, белыми фасадами, душем в нише, инсталляцией, коричневой плиткой, керамогранитной плиткой, коричневыми стенами, полом из керамогранита, душевой кабиной, накладной раковиной, столешницей из искусственного камня, коричневым полом, душем с распашными дверями, белой столешницей, тумбой под одну раковину и подвесной тумбой
Ди Арт - студия дизайна интерьера

Квартира 98м² в ЖК Парадный Квартал
Стильный дизайн: ванная комната среднего размера в современном стиле с белыми фасадами, душем в нише, инсталляцией, коричневой плиткой, керамогранитной плиткой, коричневыми стенами, полом из керамогранита, душевой кабиной, накладной раковиной, столешницей из искусственного камня, коричневым полом, душем с распашными дверями, белой столешницей, тумбой под одну раковину, стеклянными фасадами и подвесной тумбой - последний тренд
Ди Арт - студия дизайна интерьера

Квартира 98м² в ЖК Парадный Квартал
На фото: ванная комната среднего размера в современном стиле с белыми фасадами, душем в нише, инсталляцией, коричневой плиткой, керамогранитной плиткой, коричневыми стенами, полом из керамогранита, душевой кабиной, накладной раковиной, столешницей из искусственного камня, коричневым полом, душем с распашными дверями, белой столешницей и тумбой под одну раковину
Ди Арт - студия дизайна интерьера

Квартира 98м² в ЖК Парадный Квартал
Пример оригинального дизайна: ванная комната среднего размера в современном стиле с белыми фасадами, душем в нише, инсталляцией, коричневой плиткой, керамогранитной плиткой, коричневыми стенами, полом из керамогранита, душевой кабиной, накладной раковиной, столешницей из искусственного камня, коричневым полом, душем с распашными дверями, белой столешницей и тумбой под одну раковину
Ди Арт - студия дизайна интерьера

Квартира 98м² в ЖК Парадный Квартал
Свежая идея для дизайна: ванная комната среднего размера в современном стиле с душевой кабиной, белыми фасадами, душем в нише, инсталляцией, коричневой плиткой, керамогранитной плиткой, коричневыми стенами, полом из керамогранита, накладной раковиной, столешницей из искусственного камня, коричневым полом, душем с распашными дверями, белой столешницей и тумбой под одну раковину - отличное фото интерьера
Ди Арт - студия дизайна интерьера

Ходынское Поле - Фото. 150 кв.м. Современный стиль. Реализованный проект.
Источник вдохновения для домашнего уюта: ванная комната среднего размера в современном стиле с плоскими фасадами, белыми фасадами, инсталляцией, коричневой плиткой, керамогранитной плиткой, коричневыми стенами, полом из керамогранита, накладной раковиной, столешницей из искусственного камня, коричневым полом и белой столешницей
Екатерина Ялалтынова

Ходынское Поле - Фото. 150 кв.м. Современный стиль. Реализованный проект.
Стильный дизайн: ванная комната среднего размера в современном стиле с плоскими фасадами, белыми фасадами, инсталляцией, коричневой плиткой, керамогранитной плиткой, коричневыми стенами, полом из керамогранита, накладной раковиной, столешницей из искусственного камня, коричневым полом и белой столешницей - последний тренд
Екатерина Ялалтынова

Двухкомнатная квартира для семьи из Москвы
Dina Borovskaya

Яркая квартира с желтым диваном и голубой стеной в спальне
Источник вдохновения для домашнего уюта: ванная комната среднего размера в современном стиле с плоскими фасадами, белыми фасадами, отдельно стоящей ванной, душем в нише, инсталляцией, разноцветной плиткой, керамогранитной плиткой, разноцветными стенами, полом из керамической плитки, душевой кабиной, накладной раковиной, столешницей из искусственного камня, белым полом, душем с распашными дверями, белой столешницей, нишей, тумбой под две раковины и подвесной тумбой
Максим Максимов

Яркая квартира с желтым диваном и голубой стеной в спальне
Свежая идея для дизайна: ванная комната среднего размера в современном стиле с плоскими фасадами, белыми фасадами, отдельно стоящей ванной, душем в нише, инсталляцией, разноцветной плиткой, керамогранитной плиткой, разноцветными стенами, полом из керамической плитки, душевой кабиной, накладной раковиной, столешницей из искусственного камня, белым полом, душем с распашными дверями, белой столешницей, нишей, тумбой под две раковины и подвесной тумбой - отличное фото интерьера
Максим Максимов




