
Архитекторы
5
·
10 отзывов
Офис г. Дюссельдорф
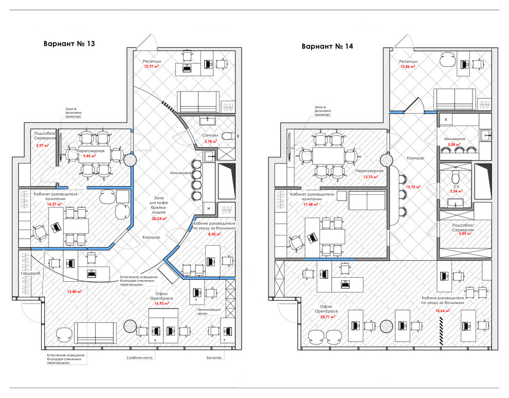
Офис расположен в г Дюссельдорф на первом этаже офисного центра. Офис имеет два входа : с улицы для посетителей и визитеров центра для них открыт второй вход из вестибюля офисного центра. Было разработано несколько вариантов планировки, пока руководство медицинского центра для которого проектировался офис выбрали понравившийся план. Была поставлена задача объединить в единой концепции открытое пространство и кабинеты для руководителя и персонала.
Другие фотографии в проекте
Вопросы к фото 0
Задайте вопрос
Вам ответят эксперты. Пришлем уведомление, когда вам ответят




