
Дизайнеры интерьера
0
Однокомнатная квартира в перепланировке в двухкомнатную
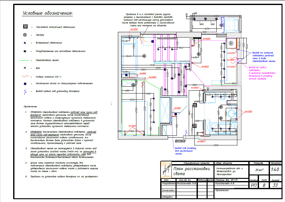
Задача, поставленная заказчиком: нужно организовать спальное и рабочее место для девочки-подростка, отдельное помещение для хозяйки, придумать дизайн в скандинавском стиле, предусмотреть место для хранения хозяйственного инвентаря, сделать разные сценарии освещения и предусмотреть еще одно спальное место для редких гостей. Заказчица была не против перепланировки, но против замены ванны душевой кабиной. . Особенностью этого проекта было, что квартира находится в Калининградской области и замеры пришлось осуществлять удаленно. Для исключения ошибки мы перепроверили дополнительно критически важные размеры и мною было предложено решение, которое позволяет сделать из однокомнатной квартиры многофункциональное жилье, в котором есть отдельная приватная зона для хозяйки, студийная зона для девочки-подростка с собственным спальным местом, шкафом и рабочей зоной для учебы, а также небольшая лаундж-зона с TV. Также, решено было объединить санузел с ванной, возведя новые перегородки взамен прежних и организовав пространство внутри санузла по-новому. У нас получилось просторное помещение, в котором есть все необходимое, в том числе стиральная машина и при этом санузел приобрел элегантный вид и красивый сценарий освещения. . Предложенный вариант перепланировки учитывает нормы согласования: изменения можно узаконить и получить новый паспорт БТИ. Эти изменения выступают в виде: . - объединения санузла с ванной комнатой, . - переноса стен (все внутренние перегородки не являются несущими) . - определении нового контура кухни. . Поскольку высота подоконников в этой квартире была небольшой, это сыграло на руку для расширения рабочего стола на дополнительные 12 см вглубь оконного проема, что создало более комфортные условия для расположения ученицы за столом и достаточный проход за спиной сидящего за столом человека. Чтобы сохранить выигранное пространство, было принято решение использовать рулонный шторы с креплением к раме. . Для образа нового интерьера согласована классическая комбинация элементов скандинавского дизайна: светлые стены, деревянный пол в жилой зоне и кафельный – в остальных, яркие акценты в предпочитаемой заказчицей палитре, а также светопрозрачные перегородка и двери. Чтобы не перегружать и без того богато оснащенную электротехническую начинку квартиры, было решено отказаться от закарнизной подсветки на кухне, но оставили подсветку «парящего» потолка в спальной комнате хозяйки. Такое решение очень актуально для помещений без окон с видом на улицу – визуально расширяет пространство и делает его легче, воздушнее. Особенной изюминкой комнаты хозяйки стала изящная резная перегородка, установленная в нишу и с подсветкой лаконичным подвесным светильником жизнерадостного лимонного цвета, расположенным над макияжным столиком. . Кухня получилась простой и функциональной, а интересным акцентом стал выложенный глянцевыми белыми плитками в виде «английской елочки», фартук рабочей зоны и красивый светильник с сочным абажуром над круглым обеденным столом. . Особой изюминкой проекта является светопрозрачная перегородка из реек, переходящая в настенный рельефный потолок над зоной отдыха (диван, столик, ТВ). Для придания уюта и очарования этой, в общем-то, проходной и скромной по размерам, зоне на потолке были размещены накладные точечные светильники, создающие праздничную и легкую атмосферу, а на стене над двухместным диванчиком – большая картина в ненавязчивой абстрактной стилистике. . При том, что площадь всей квартиры невелика (около 40 кв.м.), в ней удалось разместить достаточное количество мест для хранения (большой шкаф-купе в спальной, шкаф в детской, шкаф в прихожей и внутринишевые зоны хранения в ванной) и при этом пространство внутри квартиры ощущается легким и свободным. . Для домашнего питомца оборудовано местечко за выступающей колонной в ванной, оно скрыто от глаз жильцов и не нарушает гармонии пространства. А такой важный агрегат, как WI-FI роутер спрятан от глаз подальше в верхней полочке шкафа в детской «комнате»: его не видно, но сигналу распространяться ничто не мешает. Балкон было предложено утеплить и застеклить, превратив в полноценное место отдыха: этому способствует наличие комфортабельного кресла, барная стойка вдоль окна, компактные табуреты и шикарный вид из окна. . В проекте активно используется подсветка разного уровня и сценариев, зеркала для расширения пространства и арт-объекты для создания акцентов и придания интерьеру характера и настроения. . Клиентка была очень довольна результатом, по ее словам, она не ожидала, что именно так можно трансформировать имеющиеся квадратные метры и получить такой впечатляющий новый облик жилья. . Работа над проектом заняла 2,5 месяца и, помимо полного комплекта чертежей для строительно-ремонтных работ, сюда вошли эскиз-коллаж и объемная модель в 3D (визуализация), а также ведомость (в данном конкретном случае) розеток. .
Другие фотографии в проекте
Вопросы к фото 0
Задайте вопрос
Вам ответят эксперты. Пришлем уведомление, когда вам ответят




