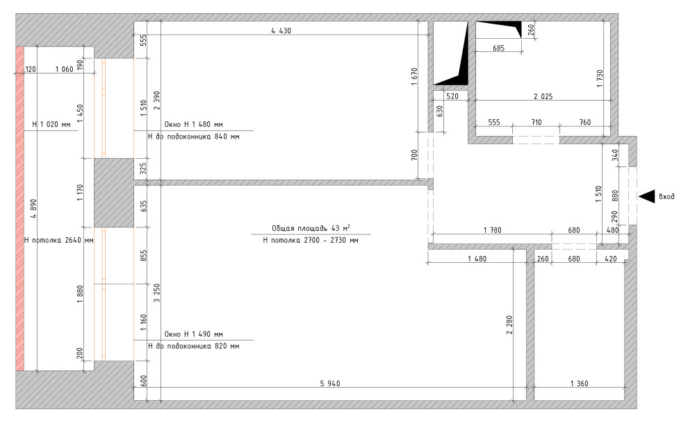
Обмерный план квартиры

Другие фотографии в проекте Однокомнатная квартира в Москве

Вопросы к фото 0

Задайте вопрос

Вам ответят эксперты. Пришлем уведомление, когда вам ответят

Москва, Скандинавский, Цветной интерьер, дизайн квартиры бохо стиль, дизайн квартиры сканди, дизайн однушки, дом серия II-67, план квартиры, план обмерный, скандинавский дизайн, скандинавский интерьер, современный интерьер, яркий дизайн интерьера, яркий интерьер

Светлана Шевченко

Светлана Шевченко

Дизайнеры интерьера

Смотреть профиль

3

отзыва

5

Рейтинг

Однокомнатная квартира в Москве

Дизайн-проект однокомнатной квартиры в Москве в доме серии II-67 для молодой девушки. . Квартира в скадинавском бохо стиле. В интерьере использована пастельная природная гамма, а также много ярких акцентов. . Несмотря на небольшую площадь, в квартире много мест для хранения: гардеробная комната, выдвижные ящики под кроватью, шкаф в прихожей в нише. . Не забыли и о питомце. Для кошки были предусмотрены лоток, интегрированный в тумбу в ванной, миски с кормом и водой в кухонном модуле, домик-когтеточка в гостиной. .

Вопросы к фото 0