
Дизайнеры интерьера
5
·
10 отзывов
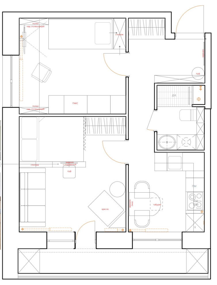
Однокомнатная квартира на Озерной
Небольшая квартира, которую удалось сделать очень комфортной несмотря на размеры. в кухне 6 кв. м поместилось всё необходимое. Спльня-гостиная всего 9 кв.м., здесь надо было предусмотреть отдельное спальное место, с возможностью отгородиться, и оставить функцию гостиной, с дополнительным спальным местом.
Другие фотографии в проекте
Вопросы к фото 0
Задайте вопрос
Вам ответят эксперты. Пришлем уведомление, когда вам ответят




