
Cтудия дизайна интерьера KV-Design
Дизайнеры интерьера
5
·
10 отзывов
Однокомнатная квартира для молодого человека
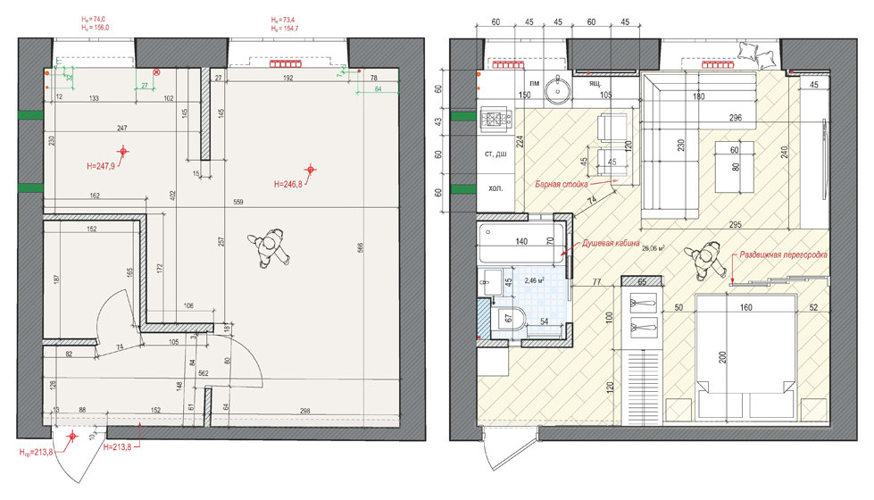
Дизайн-проект однокомнатной квартиры в кирпичном доме выполнен для молодого человека, жаждущего жить в центре столицы. Интерьер выполнен в контрастной гамме белого и черно-коричневого с добавлением синего - любимого цвета заказчика.
Другие фотографии в проекте
Вопросы к фото 0
Задайте вопрос
Вам ответят эксперты. Пришлем уведомление, когда вам ответят




