
Архитекторы
5
·
10 отзывов
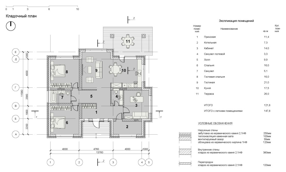
Одноэтажный дом в пос. Зимняя горка
Компактный одноэтажный дом из кирпича. Деревянная отделка фасадов, деревянная подшивка кровли, а также терраса и крыльцо из массива лиственницы. . .
Вопросы к фото 0
Задайте вопрос
Вам ответят эксперты. Пришлем уведомление, когда вам ответят