Общественный центр поселка Брусника Барн
Петр Першин

Петр Першин

Архитекторы

5

·

10 отзывов

Общественный центр поселка Брусника Барн

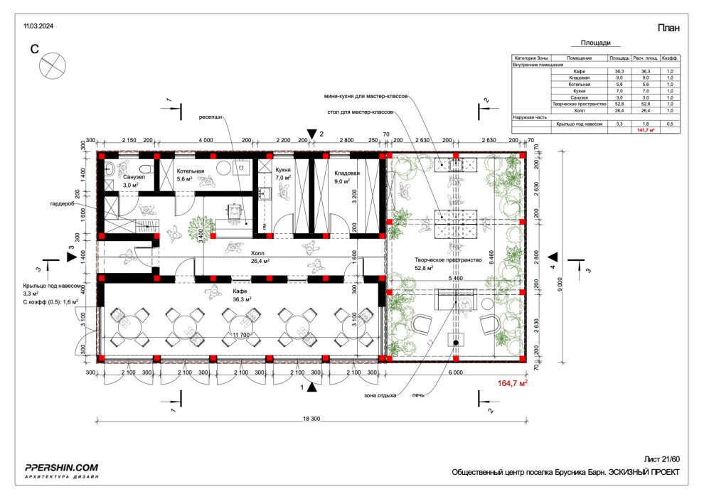
Здание с творческим пространством, зимним садом, зоной отдыха и кафе, а также со вспомогательными помещениями, площадью 142 м2, станет общественным центром поселка из гостевых домов, а также будет местом проведения занятий, мастер-классов и различных мероприятий, связанных с тихим и уединенным отдыхом на природе. Идеей проекта служит поддержание пропорций существующих на участке домов в стиле "барн" и напоминание фрагмента Выборгского замка (скрещивающиеся разновысокие корпуса с двускатными кровлями без свесов), то есть преемственность исторической архитектуры, главной достопримечательности Выборга. Общественный центр расположен вблизи лавандового поля, на которое открываются виды и окна-двери из кафе с возможностью выйти прогуляться прямо от столика. В большом стеклянном объеме расположено творческое пространство для работы с растениями, оно служит зимним садом, а также ключевым элементом притяжения как по логике поселка, так и по внешнему виду. Минималистичная архитектура позволяет сделать спокойный строгий и местами ритмичный (метричный) образ, с симметричными элементами и без лишнего, с найденными пропорциями, эстетикой общей формы и элементов. Это позволит спокойно отдыхать и наслаждаться природой, занятиями в творческом пространстве, кушаньями в кафе и жизнью, без раздражения.

Другие фотографии в проекте

Общественный центр поселка Брусника БарнОбщественный центр поселка Брусника БарнОбщественный центр поселка Брусника Барн

Вопросы к фото 0

Задайте вопрос

Вам ответят эксперты. Пришлем уведомление, когда вам ответят