Новый деревянный

Другие фотографии в проекте Новый деревянный

Новый деревянный
Новый деревянный
Новый деревянный
Новый деревянный
Новый деревянный
Новый деревянный
Новый деревянный

Вопросы к фото 0

Задайте вопрос

Вам ответят эксперты. Пришлем уведомление, когда вам ответят

Краснодар

Владислав Шахов

Владислав Шахов

Архитекторы

Смотреть профиль

10

отзывов

5

Рейтинг

Новый деревянный

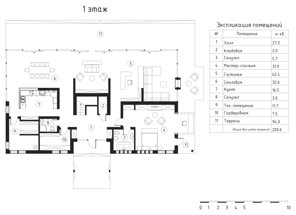
Дом расположен в Адыгее, недалеко от Майкопа. Участок примыкает к лесу, подъезд к дому с левой стороны даёт возможность показать двойственность решений – фактурную оболочку и проницаемость пространства. Мы облицевали фасады некрашеной термодревесиной, чтобы дом менялся со временем. . . В отделке первого этажа использовали рейку с паттерном, который становится виден по мере приближения к фасаду, второй этаж отделан вертикальной доской разной толщины, светотень у такого решения более активна и при разной освещённости фасад приобретает «подвижность». Основой внутреннего решения стал комплекс помещений гостиной-кухни-столовой – этот объём ограничен с трёх сторон витражным остеклением, сверху витражной кровлей. Мы стремились впустить Лес в дом, при этом, центральный фасад остаётся стеной, не давая возможности заглянуть во внутрь. . . Главный вход расположен по центральной оси и немного утоплен вглубь фасада, над входом нависает объём малой гостиной, который опирается на «V» образные опоры. Если подниматься с уровня нижней парковки, то складывается ощущение, что дом обволакивает пришедших и только после этого впускает.На первом этаже находятся общие зоны и мастер-спальня с отдельным санузлом. Дополнительно, рабочая зона в мастер-спальне, как-бы, вынесена за её пределы и находится в стеклянном объёме вне основного контура дома, при этом, из комнаты есть выход наружу на обособленную крытую террасу. . . Перед задним стеклянным фасадом мы запроектировали террасу, которая является логичным связующим между двумя зонами: Дом и Лес - в тёплое время года при открытых створках раздвижных дверей грань полностью пропадает.

Вопросы к фото 0