logo
Новое Бакеево

Другие фотографии в проекте Новое Бакеево

Вопросы к фото 0

Задайте вопрос

Вам ответят эксперты. Пришлем уведомление, когда вам ответят

Наталья Крикова

Наталья Крикова

Дизайнеры интерьера

Смотреть профиль

3

отзыва

5

Рейтинг

Новое Бакеево

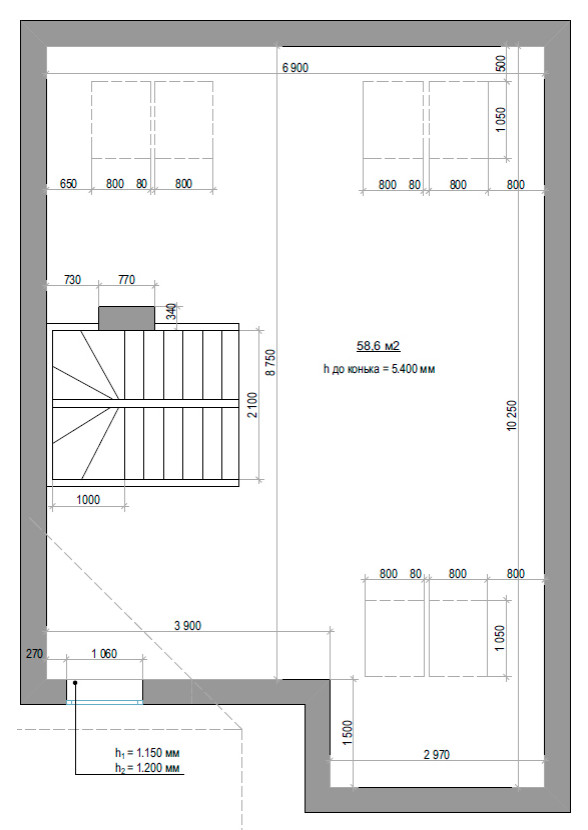
Обмерный план мансарды

Вопросы к фото 0