
Дизайнеры интерьера
5
·
10 отзывов
Неоклассика в типичной панельке
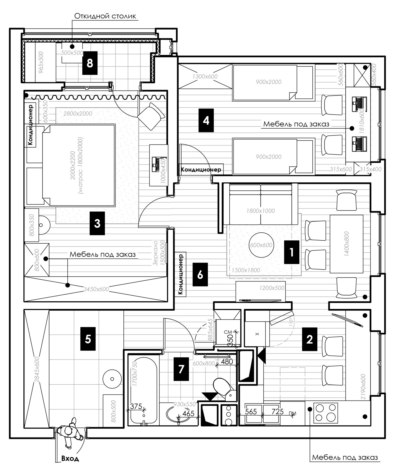
Общая площадь 69 кв. м, демонтируемые участки — стена между туалетом и ванной (то есть мы объединили санузел) и стенка гостиной. Новые дверные проёмы появились в спальне (3) и кухне (2), а вот старые, наоборот, убрали: ранее проход в спальню был ровнёхонько напротив входной двери, а в кухню — традиционно сразу за туалетом. :) Все «переделки» в проекте согласованы официально
Другие фотографии в проекте
Вопросы к фото 0
Задайте вопрос
Вам ответят эксперты. Пришлем уведомление, когда вам ответят




