
Проектирование и строительство
5
·
2 отзыва
Некст
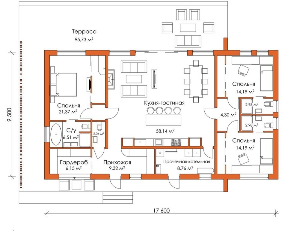
Площадь дома: 151 м² . Площадь террас: 96 м² . Кол-во этажей: 1 . Кол-во спален: 3 . Кол-во санузлов: 4 . . Одноэтажный загородный дом с просторной террасой, лаконичный по архитектурному и простой по планировочному решению. Этот деревянный дом подходит как для сезонного проживания семьи из 3-х и более человек, размещения гостей, так и в качестве основной постройки для постоянного проживания. Внешний фасад дома выражает природную естественность дерева. . . Архитектор - Виталий Харитошин
Другие фотографии в проекте
4 раза сохранено в статьи и альбомы идей:
Вопросы к фото 0
Задайте вопрос
Вам ответят эксперты. Пришлем уведомление, когда вам ответят




