
Дизайнеры интерьера
5
·
5 отзывов
Настоящая симфония
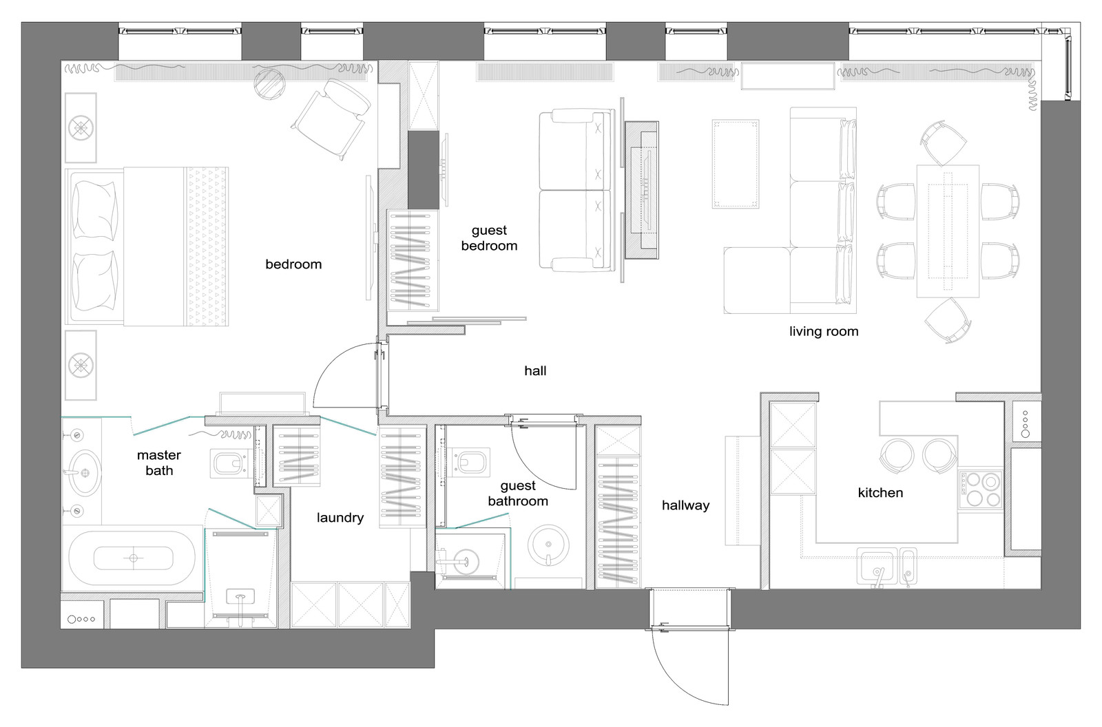
Про разные оформление зон в квартире : . Владелец квартиры - девушка , а так как наш тем жизни на столько быстр и разнообразен , всем людям занимающимся бизнесом приходится в делах себя держать в рамках показывая свой статус/влияние и выглядеть сдержано . Но узнавая ее ближе , она показывала свою вторую сторону - ту жизненную , та как она ведет себя с друзьями и близкими - отсюда и такая цветная спальня . Важная орнаментальная - это скорее отражение ее «личной» жизни ( но об этом наверное не стоит писать ) , может лучше написать то что темная политра и орнаменты более успокаивающие и придают погружение в спокойствие после суетных дней . То есть по большому все это - это характер и тем жизни моей заказчицы который просматривается через комнаты ее квартиры . Вот кухня , по большому счету на кухне она проводит только завтрак , то время когда нужно быстро себя собрать в кучку и отправить на работу . . Или например приват комната , то среднее состояние когда еще не спишь но уже и отключаешь голову после дня за чтением книги , то есть это цепочка ее дня , ее жизни . . . Декор это собственное чувство того как вижу ее именованием я. Осень прекрасное время года и я кстати очень рад что у нас получилось сфотографировать интерьер именно в это время года . . . Мы очень долго «вымучивали» приват зону , эта зона была необходима просто заказчицы 6 но нужно было ее оформить таким образом что бы она не мешалась просторной гостиной , отсюда и решили сделать раздвижные перегородки .
Другие фотографии в проекте
Вопросы к фото 0
Задайте вопрос
Вам ответят эксперты. Пришлем уведомление, когда вам ответят




