
Дизайнеры интерьера
0
my first design | мой первый дизайн
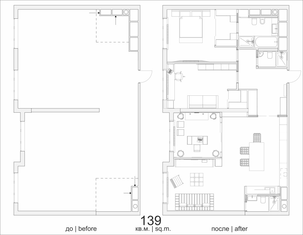
планировка квартиры 139 квадратных метров с тремя санузлами, кухней гостиной, кабинетом и двумя спальнями | layout of an apartment of 139 square meters with three bathrooms, a living room kitchen, an office and two bedrooms
Другие фотографии в проекте
Вопросы к фото 0
Задайте вопрос
Вам ответят эксперты. Пришлем уведомление, когда вам ответят




