logo
IMG_1240.PNG
Tanzilya Britkina

Tanzilya Britkina

Архитекторы

5

·

10 отзывов

"Musical attic" ("Музыкальная мансарда" - комната для подростка, обновление стар

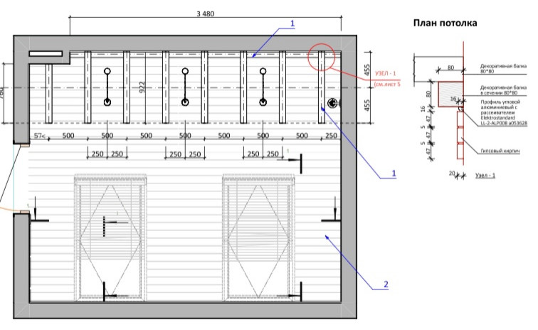
Проект "Музыкальная мансарда" создавался для мальчика-подростка, котрпый увлекается музыкой и любит совраменные технологии. Сложностью было вписать несколько функциональеых зон в небольшую площадь, сохранив часть старой отделки и мебели. . В результате работы было создано многофункциональное рабочее место, сохранены все необходимые материалы и мебель, и как итог - организовано атмосферное пространство для творчества и жизни.

Другие фотографии в проекте

Вопросы к фото 0

Задайте вопрос

Вам ответят эксперты. Пришлем уведомление, когда вам ответят