Монако_971 кв.м
Vesco Construction

Vesco Construction

Проектирование и строительство

4.67

·

10 отзывов

Монако_971 кв.м

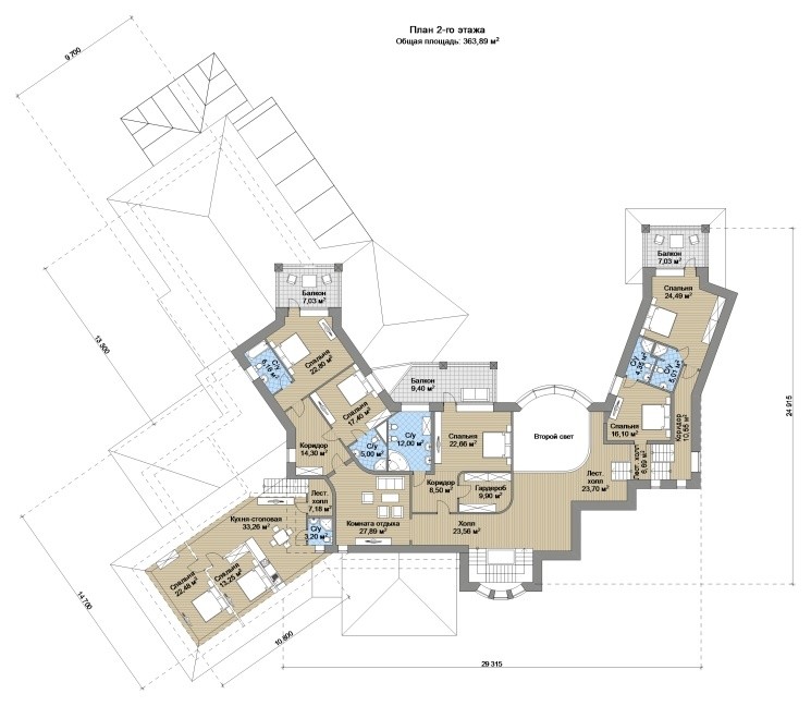
Автор проекта Vesco Construction . . Год проекта 2010 . . Архитектурный стиль Средиземноморский . . Год окончания работ 2012 . . Площадь 971,65 кв.м. . . Фундамент Монолитный . . Материал строительства Кирпич . . Межэтажные перекрытия Монолит . . Кровля Мягкая битумная . . Отделка фасада Штукатурка, камень . . УСАДЬБА В ПОСЕЛКЕ ЛАЗУРНЫЙ БЕРЕГ НА ПЕСТОВСКОМ ВОДОХРАНИЛИЩЕ: http://podryady.ru/projects/usadba-v-poselke-lazurnyj-bereg/ . podryady.ru/projects/individualnyj-proekt-monako . . Стоимость 145 000 руб . Все готовые проекты компании Vesco Construction вы можете посмотреть здесь: http://podryady.ru/projects-ready/

Другие фотографии в проекте

Вопросы к фото 0

Задайте вопрос

Вам ответят эксперты. Пришлем уведомление, когда вам ответят