logo
Многоквартирный дом клубного типа 001

Другие фотографии в проекте Многоквартирный дом клубного типа 001

Вопросы к фото 0

Задайте вопрос

Вам ответят эксперты. Пришлем уведомление, когда вам ответят

Архитектурный проект гостевого дома, Дизайн-проект многоквартирного дома, Переходный, Проект клубного дома, Проект коммерческой недвижимости

Сергей Завгородний
Смотреть профиль

0

отзывов

0

Рейтинг

Многоквартирный дом клубного типа 001

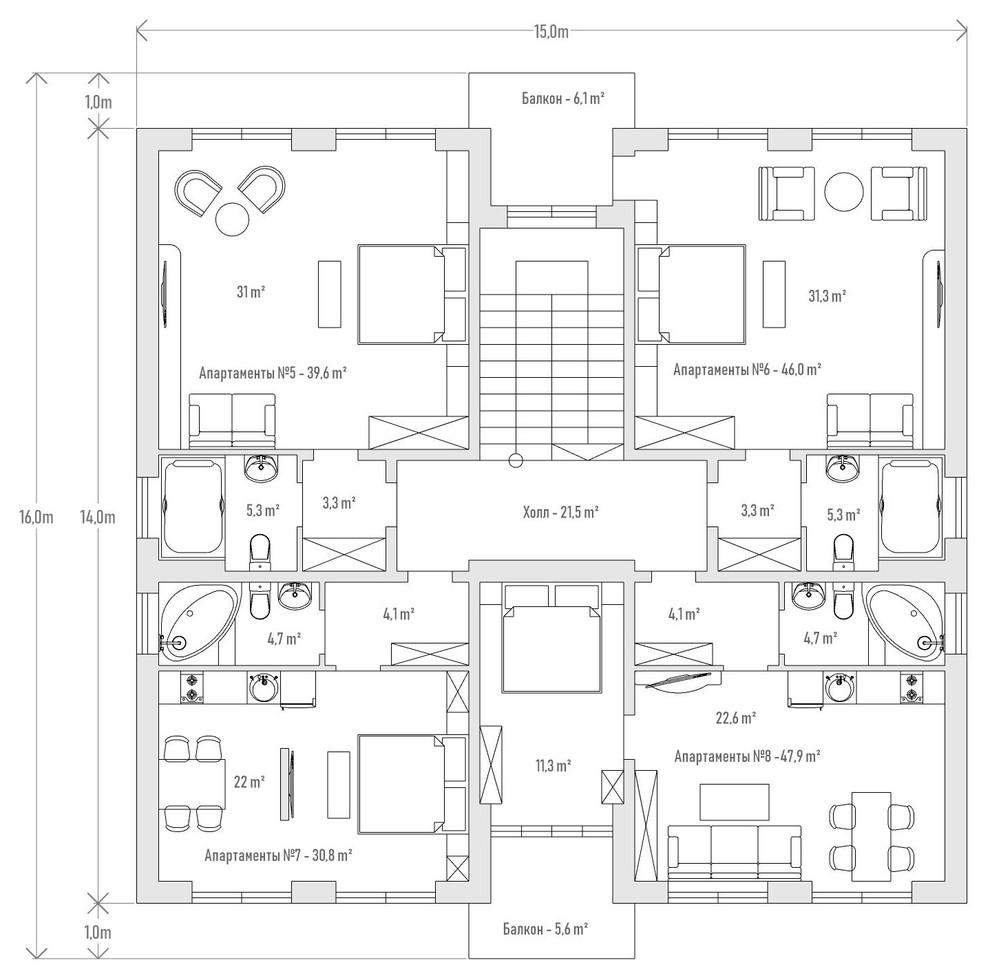
Многоквартирный дом клубного типа . . . . 1. Площадь пятна застройки - 248 м2 . . . . 2. Общая площать здания - 775 м2 . . . . 3. Количество номеров - 12 шт . . . . 4. Количество этажей - 4 шт . . . . 5. Площадь 1 этажа - 201,1 м2 . . . . 6. Площадь 2 этажа - 188 м2 . . . . 7. Площадь 3 этажа - 185,8 м2 . . . . 8. Площадь 4 этажа - 179,8 м2 . . . . 9. Площадь жилых помещений - 354,9 м2 . . . . 10. Площадь нежилых помещений - 399,8 м2 . . . . 11. Площадь террас / балконов - 53,4 м2

Вопросы к фото 0