
Архитекторы
5
·
3 отзыва
Минималистичная вилла на побережье
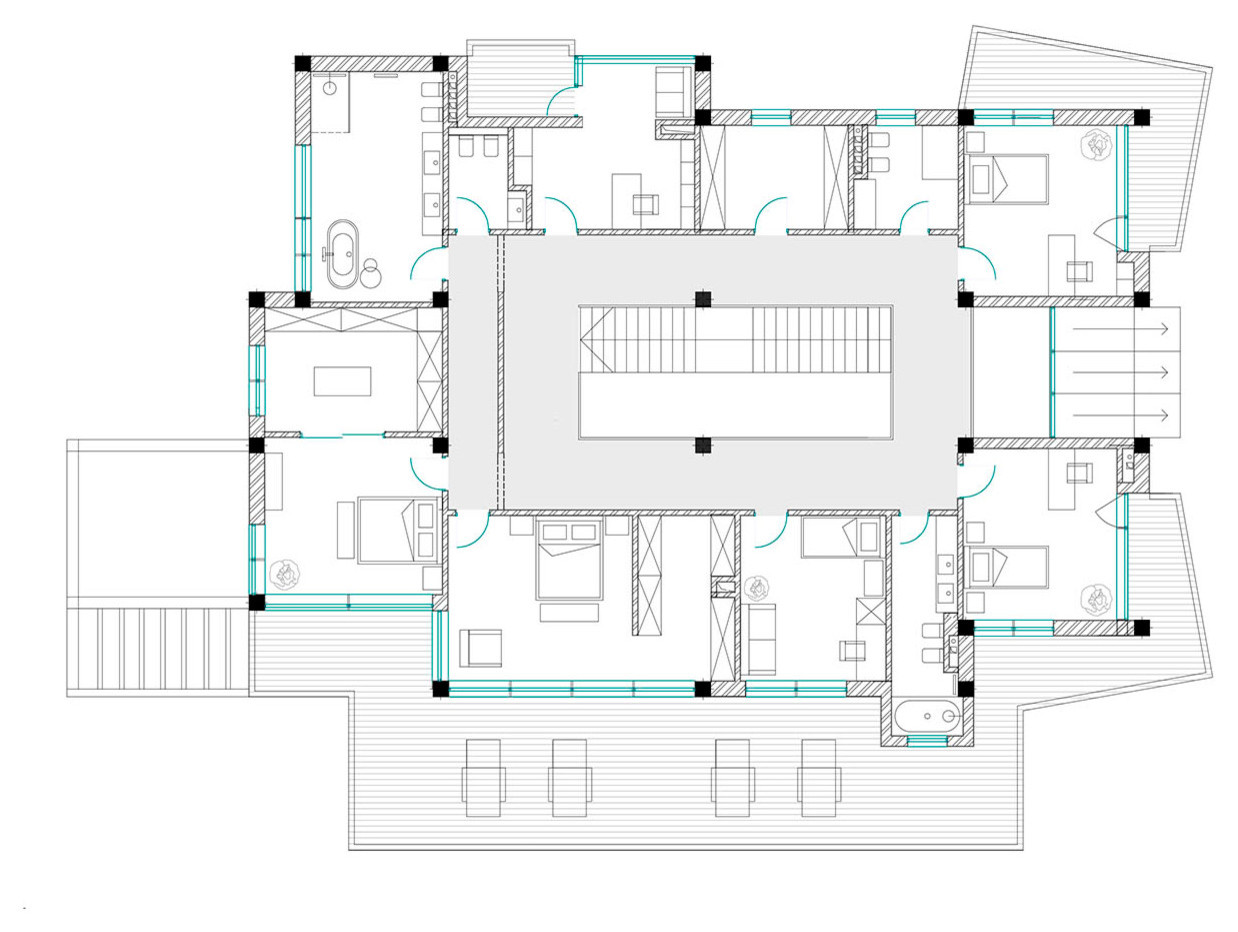
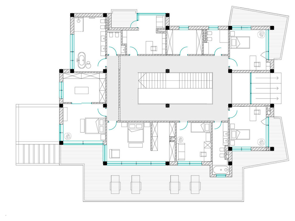
Минимализм обретает всё большую популярность у россиян. . И всё чаще заказывают проекты архитекторам именно в этом стиле. . Сочетание светлых поверхностей стен и конструктивных элементов с отделкой из натуральных материалов позволяет архитектору проявить своё истинное умение работать с пропорциями. . Здесь красота достигается именно нахождением гармоничного баланса между частями здания. Открытые же террасы и плоские крыши, характерные для этого стиля, способствуют распространению его у нас на юге, где на первый план выходит солнцезащита внутренних помещений с максимальным растворением всего объёма здания в окружающем ландшафте. Благодаря этому, а также строгости и лаконичности форм, этот стиль сейчас популярен во многих регионах с климатом, похожим на сочинский, но почему-то весьма часто у нас его называют «средиземноморским». . Сегодня мы представляем вам реализацию проекта жилого дома, разработанного ООО «Династия Дизайнс». . Этот проект сложно увязать с понятием «минимализм» из-за далеко немаленького участка и габаритов всего здания. Но, тем интереснее его планировочное решение. Первый этаж имеет чёткое разделение на две части: большую общественно-гостевую и меньшую бытовую, удачно спрятанную за лестницей, ведущей на второй этаж. Гостиная свободной планировки отделена от входной части перепадом в 4 ступени, зато связана с наружной террасой как одним уровнем, так и визуально сквозь витражное остекление. Это позволяет максимально растворить грань между внешним и внутренним пространством. Жилые помещения второго этажа скомпонованы вокруг атриума, который имеет естественное освещение за счёт устройства светового фонаря на плоской крыше и витража входного портала. Такая организация внутреннего пространства помогла уйти от унылого коридора. . Главный вход в дом выделяется не только массивным порталом, но и единственным симметричным фасадом. . Асимметричное решение остальных фасадов помогает сделать их более пластичными при сохранение чётких линий как и подобает стилю минимализм. . .
Другие фотографии в проекте
Вопросы к фото 0
Задайте вопрос
Вам ответят эксперты. Пришлем уведомление, когда вам ответят




