
Дизайнеры интерьера
4.92
·
10 отзывов
Мягкое солнце
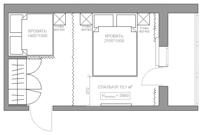
Площадь - 15,1 м кв. Высота потолка - 2,9 м . 1 комната, Зеленоград . Спальня для родителей и маленького ребенка. . Дополнительная сложность - холодная стена. .
Другие фотографии в проекте
Вопросы к фото 0
Задайте вопрос
Вам ответят эксперты. Пришлем уведомление, когда вам ответят




