
Дизайнеры интерьера
5
·
10 отзывов
Мещерский лес
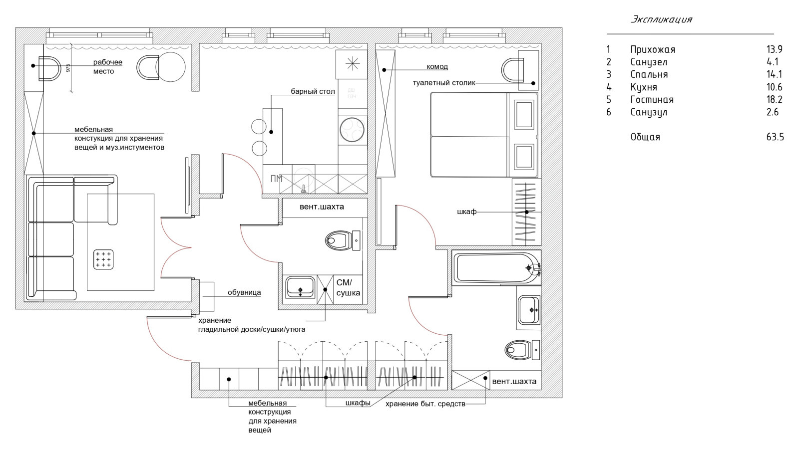
Об этом проекте можно прочитать на странице журнала ИДЕИ вашего ДОМА https://www.ivd.ru/pereplanirovki/custom_house/custom_flat/20362 .
Другие фотографии в проекте
Вопросы к фото 0
Задайте вопрос
Вам ответят эксперты. Пришлем уведомление, когда вам ответят
Похожие фотографии

Таунхаус с классическим интерьером
ООО "Сендега"

Вдохновленный кинематографом: проект, сотканный из "Цвета граната"
Анастасия Федоровская

Дизайн-проект квартиры в ЖК «Новоселье: Городские кварталы» в современном стиле
Студия дизайна Artum

Квартира серии п-44 в Братеево
Елизавета Матвейко

Квартира серии п-44 в Братеево
Елизавета Матвейко

Дизайн интерьера квартиры в ЖК «Апарт-комплекс ZOOM на Неве» в современном стиле
Студия дизайна Artum

Дизайн и ремонт квартиры в ЖК Эмеральд в Москве - Сияние форм
ООО Вира-АртСтрой

Дом в Сестророецке
Ксения Борисова

Квартира в ЖК "Легато"
КВЕРКУС

Квартира в ЖК "Легато"
КВЕРКУС

Квартира коллекционера
Марина Корнилова

Загородный дом в КП "Николино" 1000 м²
Екатерина Любимкина




