logo
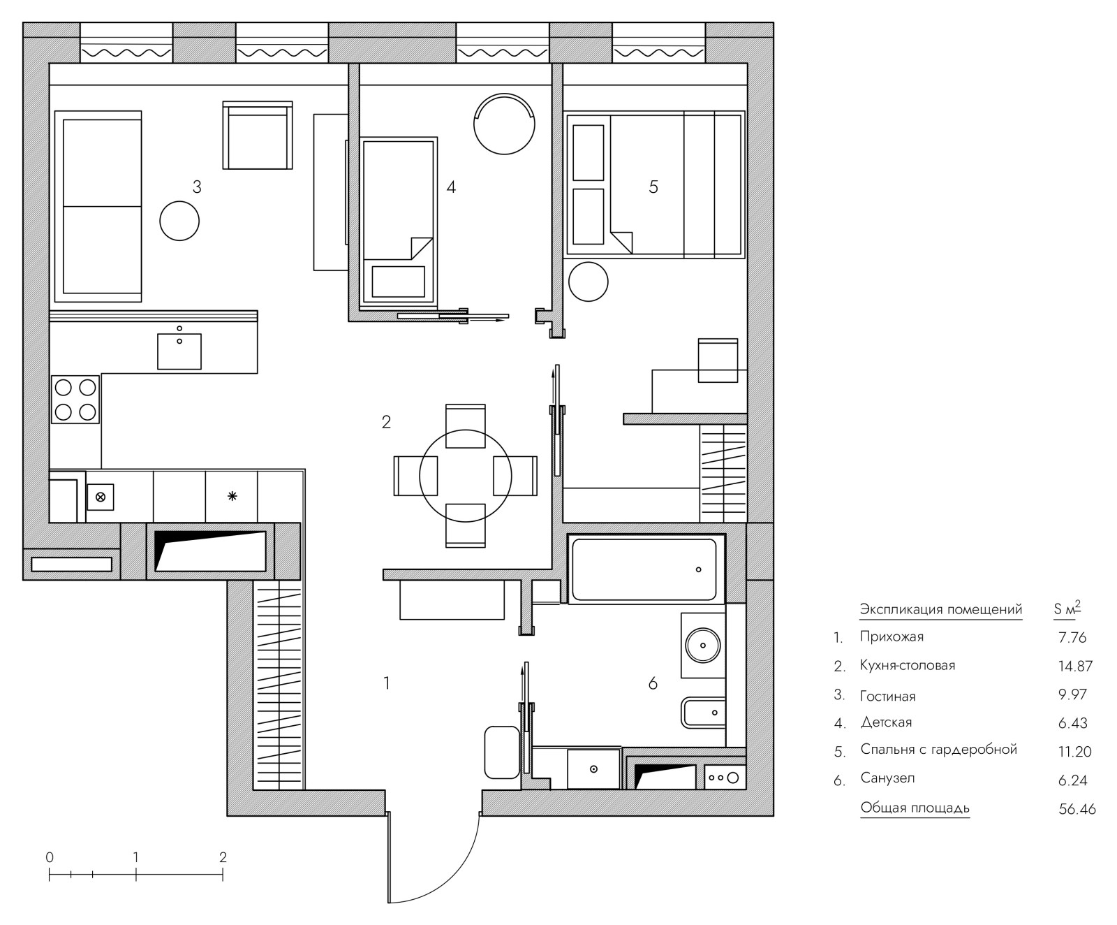
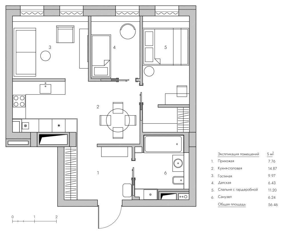
Планировка

Другие фотографии в проекте Мансардная квартира

Вопросы к фото 0

Задайте вопрос

Вам ответят эксперты. Пришлем уведомление, когда вам ответят

Казань, Мид-сенчури

virstakdesign

VIRSTAK Design

Дизайнеры интерьера

Смотреть профиль

1

отзыв

5

Рейтинг

Мансардная квартира

Квартира на мансардном этаже в центре Казани. Заказчики - молодая пара, любят музыку, книги, винтажную атмосферу и декор в стиле ретро. Они недавно стали родителями, перед нами стояла задача на небольшой площади выделить пространство для каждого члена семьи. . Исходные данные были не идеальны: две комнаты, в которых родителям пришлось бы отказаться от своей спальни. . Нам удалось спроектировать иное пространство, в котором появились камерные и наполненные функцией зоны. . Окна выходят на одну сторону, оттого гостиная, кухня и столовая перетекают друг в друга, так в них проникает солнечный свет. Кухня отделена от гостиной стеклянной перегородкой. Вместительный шкаф в прихожей продолжает кухню. В главной спальне появились гардеробная и рабочее место. Раздвижные двери берегут пространство. . Интерьер получился активным по цвету — спальня и кухня в насыщенном зелёном, густой песочный на стенах гармонирует с деревом на полу. Обстановка собиралась из современных и винтажных вещей. . Мы создавали интерьер, который мог сложиться и быть живым, не выглядя как свежий ремонт без лица.

Вопросы к фото 0