
Дизайнеры интерьера
5
·
10 отзывов
Маленькая цветная евродвушка в ЖК "Артлайн" в нежных тонах
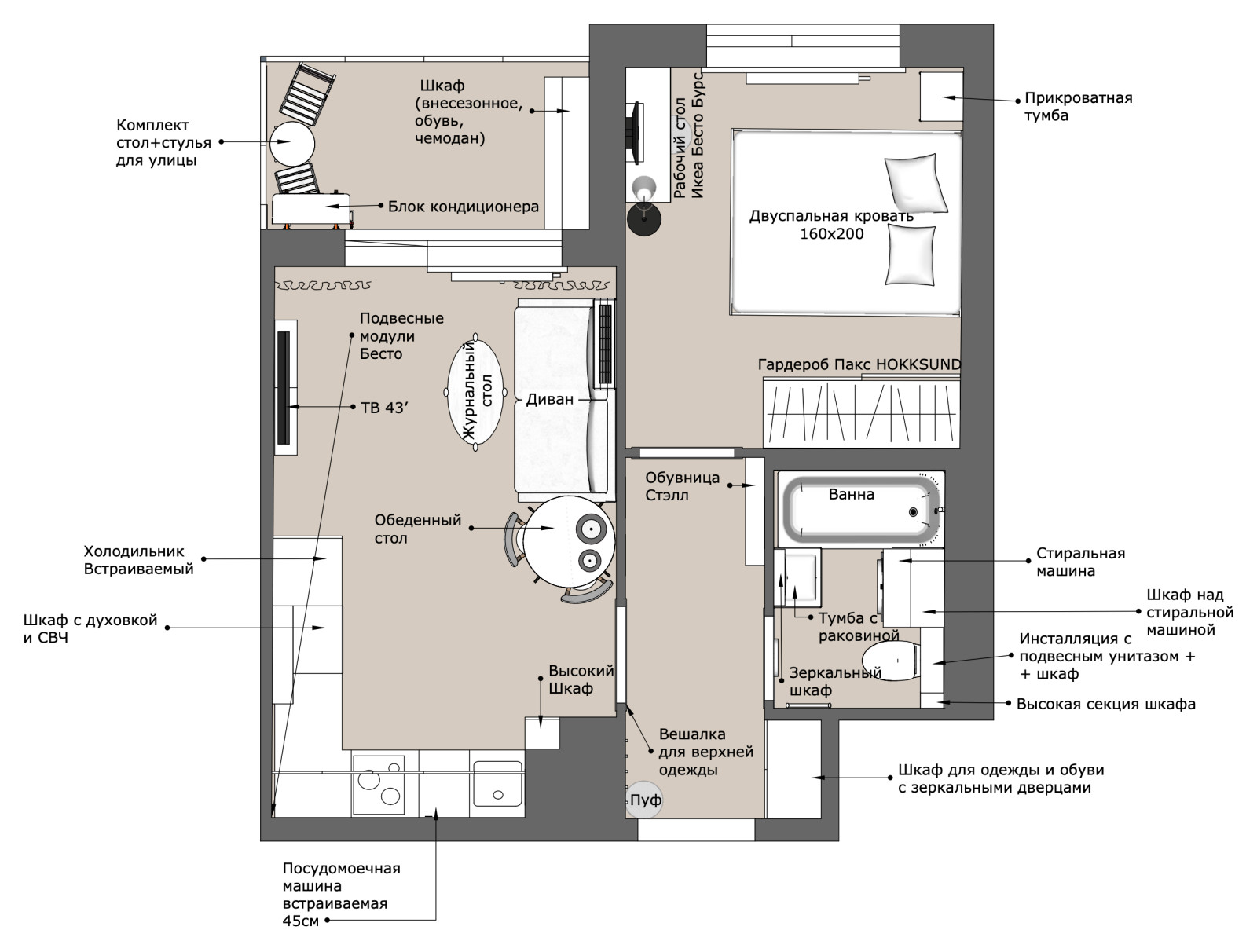
Проект нежного интерьера 1 к.кв. 32 м² в ЖК Артлайн для молодой девушки . . - задача максимально сохранить отделку от застройщика . - ничего черного и яркого . - ?в спальне обустроить рабочее место и уместить кровать шириной 160 см и полноценный гардероб глубиной 60. В качестве стола подошел небольшой стол Икеа Бесто Бурс (40 см глубиной), а вместо рабочего стула - пуф без спинки, чтобы полностью задвигать под стол и не загромождать проход. Вместо рабочей настольной лампы - торшер напольный, чтобы не занимать место у компьютера. Гардероб - с раздвижными дверями, поскольку расстояние до кровати не позволяет сделать распашные. . - небольшой мобильный обеденный столик в кухне-гостиной, большой не требуется
Другие фотографии в проекте
Вопросы к фото 0
Задайте вопрос
Вам ответят эксперты. Пришлем уведомление, когда вам ответят




