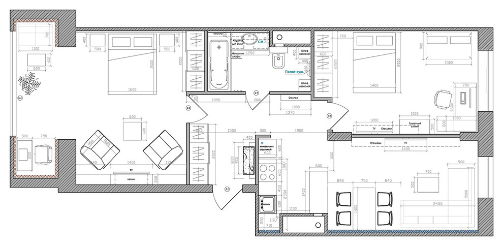
Квартира в стиле домашний лофт для семьи. Коммунарка, Московская обл.

Другие фотографии в проекте Лофт для всей семьи в пригороде 84 кв.м.

Вопросы к фото 0

Задайте вопрос

Вам ответят эксперты. Пришлем уведомление, когда вам ответят

Москва, планировка