logo
Locker

Другие фотографии в проекте Locker

Вопросы к фото 0

Задайте вопрос

Вам ответят эксперты. Пришлем уведомление, когда вам ответят

Москва

arch_mel

MEL | Architecture and Design

Архитекторы

Смотреть профиль

0

отзывов

0

Рейтинг

Locker

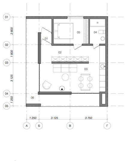
Типовой дом Locker спроектирован на основе базового жилого модуля и различных вариантов пристроек и террас, что позволяет создавать самые разные конфигурации исходя из функциональных потребностей и бюджета. Базовый модуль размерами 5 х 10м имеет высоту потолка 2,5 метра и вмещает в себя гостинную с кухней, спальную комнату, санузел с душем, кладовую и крытую террасу. Дополнительные модули с одной или двумя комнатами могут быть предусмотрены сразу или пристроены позднее в случае необходимости. Конструкция из утепленных панелей полностью изготавливается на заводе и монтируется на месте за несколько дней. Дом полностью подходит для круглогодичного проживания и соответствует всем требованиям по теплотехнике и энергоэффективности. Фасады имеют большой выбор наружней отделки, что делает дом индивидуальным и подходящим для самых разных целей. В стандартной комплектации использованы отделка из окрашеных фиброцементных панелей серго цвета и планкен из дерева. Оконные блоки с двухкамерным стеклопакетом могут быть выполнены в профиле из клееной сосны или окрашенного аллюминия. Передвижные ставни на фасадах позволяют полностью закрыть дом, когда он не используется. Крыша имеет небольшой уклон и систему внешнего водостока, а также позволяет организовать дополнительную эксплуатируемую террасу.

Вопросы к фото 0